Lot
040
Auction Ends: 28/01/2026 11:57 - Bidding opens Tuesday 27th January 10:00 AM

Batley Baths, Cambridge Street, Batley, West Yorkshire, WF17 5JH

Property Details
Location
Description
Rare opportunity to acquire a grade II-listed former baths dating back to 1893 with parking

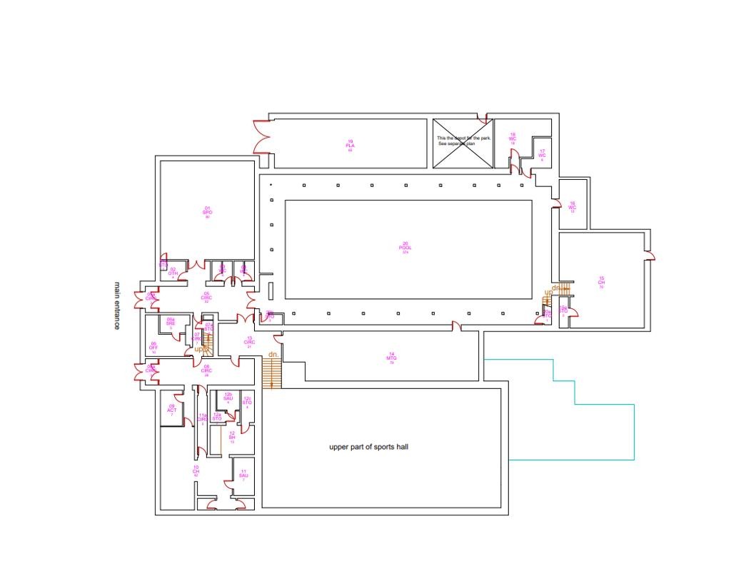
This site of a substantial former baths and leisure centre plus car park extends to approximately 0.73 acres and is sold freehold with vacant possession. The property is of stone construction and is arranged over three storeys, plus basement. It briefly comprises a 23m x 10m swimming pool, sports hall, fitness studio, sauna and steam room, office accommodation, and changing and toilet facilities. The property would be suitable for conversion/redevelopment, subject to any necessary consents.

The property enjoys a prominent position at the corner of Wellington Street and Cambridge Street in the centre of Batley. The area is of mixed-use, with Batley Memorial Park to the north, industrial premises across the road, and various retail and eatery premises and residential properties nearby. The property is also well-served by bus routes and Batley train station.
Approx Site Area
0.294 hectares (0.73 acres)
Tenure
The property is sold freehold.
Planning
For any pre-application advice, interested parties should consult directly with the Local Planning Authority: Kirklees Council, Princess Street, Huddersfield, HD1 2TT. Telephone: 01484 221 000. Email: [email protected]
Costs
Details of the Buyer's Premium and any additional fees payable are contained within the legal documents.
General
1. All the information provided on our website is for indicative purposes only and interested parties should refer to the contents of the legal pack and rely upon their own due diligence as a prudent bidder.

2. PLEASE NOTE BIDDING COMMENCES ON TUESDAY 27TH JANUARY AND CLOSES ON WEDNESDAY 28TH JANUARY.

3. Energy Performance Certificate = B

4. The pre-authorisation of the bidding deposit for this lot is £20,000.
Addendum
1. The land is subject to defects in the title. Prospective buyers must refer to the Addendum Notice in the Legal Pack for details.

2. The Property has been nominated as an Asset of Community Value. Prospective Buyers must refer to the Addendum - Asset of Community Value Nomination in the Legal Pack for details.

Our Nearest Office

Leeds 600x300

Leeds

You may also like

010

Calverley Library Building, Thornhill Street, Calverley, Pudsey, West Yorkshire, LS28 5PD

Auction Ends: 28/01/2026

Guide Price: £185,000 plus

012

10 Tower Mews, Tower Lane, Leeds, West Yorkshire, LS12 3SA

Auction Ends: 28/01/2026

Guide Price: £35,000

013

Development Opportunity At 213a Bradford Road, East Ardsley, Wakefield, West Yorkshire, WF3 2DL

Auction Ends: 28/01/2026

Guide Price: £150,000 plus

016

Edgerton Cemetery Lodge, Cemetery Road, Edgerton, Huddersfield, West Yorkshire, HD1 5NF

Auction Ends: 28/01/2026

Guide Price: £150,000 plus

026

Land Adjacent To 11 Pit Field Road, Carlton, Wakefield, West Yorkshire, WF3 3QZ

Guide Price: £70,000 plus

027

Former Gipton South Children's Centre, Coldcotes Grove, Gipton, Leeds, West Yorkshire, LS9 6QJ

Auction Ends: 28/01/2026

Guide Price: £290,000 plus

033

65 Hollinbank Lane, Heckmondwike, West Yorkshire, WF16 9NW

Auction Ends: 28/01/2026

Guide Price: £215,000 plus

048

Development Opportunity At Strawberry Lane, Leeds, West Yorkshire, LS12 1SF

Auction Ends: 28/01/2026

Guide Price: £365,000 plus

051

Car Park North Of Pine Street, Bradford, West Yorkshire, BD1 4EY

Auction Ends: 28/01/2026

Guide Price: £60,000 plus

052

Car Park South Of Pine Street, Bradford, West Yorkshire, BD1 4EY

Auction Ends: 28/01/2026

Guide Price: £100,000 plus

058

Former Knowle Manor Residential Home, Tennyson Terrace, Morley, Leeds, West Yorkshire, LS27 8QP

Auction Ends: 28/01/2026

Guide Price: £380,000 plus

059

10 Tamworth Street, Bradford, West Yorkshire, BD4 8JS

Auction Ends: 28/01/2026

Guide Price: £20,000

075

2 Rogerson Square, Brighouse, West Yorkshire, HD6 1TJ

Auction Ends: 28/01/2026

Guide Price: £73,000 plus

081

Land At Cragside Walk, Leeds, West Yorkshire, LS5 3LX

Guide Price: £50,000 plus

094

Plot 8, Land Lying To The East Of Woodview, Woodlands Drive, Apperley Bridge, Bradford, West Yorkshire, BD10 0PA

Auction Ends: 28/01/2026

Guide Price: £18,500 plus

095

Plot 9, Land Lying To The East Of Woodview, Woodlands Drive, Apperley Bridge, Bradford, West Yorkshire, BD10 0PA

Auction Ends: 28/01/2026

Guide Price: £18,500 plus

096

Land Lying To The West Of Woodlands Drive, Apperley Bridge, Bradford, West Yorkshire, BD10 0PP

Auction Ends: 28/01/2026

Guide Price: £18,500 plus

015

Abbey Lodge & Depot, Morris Lane, Kirkstall, Leeds, West Yorkshire, LS5 3EH

Auction Ends: 25/02/2026

Guide Price: £450,000 plus

033

Development Land At Roundhay Road, Leeds, West Yorkshire, LS7 3AJ

Auction Ends: 25/02/2026

Guide Price: £300,000 plus

034

Land Adjacent To 11 Pit Field Road, Carlton, Wakefield, West Yorkshire, WF3 3QZ

Auction Ends: 25/02/2026

Guide Price: £70,000 plus

039

Land At Watson Street, Normanton, West Yorkshire, WF6 2AU

Auction Ends: 25/02/2026

Guide Price: £15,000 plus

040

Former Hollybush Children's Centre, Broad Lane, Leeds, West Yorkshire, LS13 2JJ

Auction Ends: 25/02/2026

Guide Price: £200,000 plus

042

Land At Cragside Walk, Leeds, West Yorkshire, LS5 3LX

Auction Ends: 25/02/2026

Guide Price: £50,000 plus

Search Available
Online Auctions
Search online auction icon
Guide to
Buying at Auction
Buying guide icon
Guide to Selling
Your Property
Selling guide icon
Sign Up For
Auction Alerts
Alert icon