Lot
054
Auction Ends: 10/12/2025

Chapel Court, 204 Fleetwood Road North, Thornton-Cleveleys, Lancashire, FY5 4BJ

Property Details
Location
Description
High specification offices extending to approximately 400 Sq M (4,305 Sq Ft) set within a former church and sympathetically converted to provide extensive cellular and open-plan accommodation arranged over ground and first floor together with private parking for approximately 8 vehicles. The property is located less than 1 mile from Thornton-Cleveleys town centre and is situated at the junction of Fleetwood Road North and Trunnah Road, providing ready access to Blackpool, Fleetwood and the M55 motorway. The property would make an ideal HQ office location or business centre and may be suitable for alternative uses, subject to obtaining the necessary consents.
Accommodation
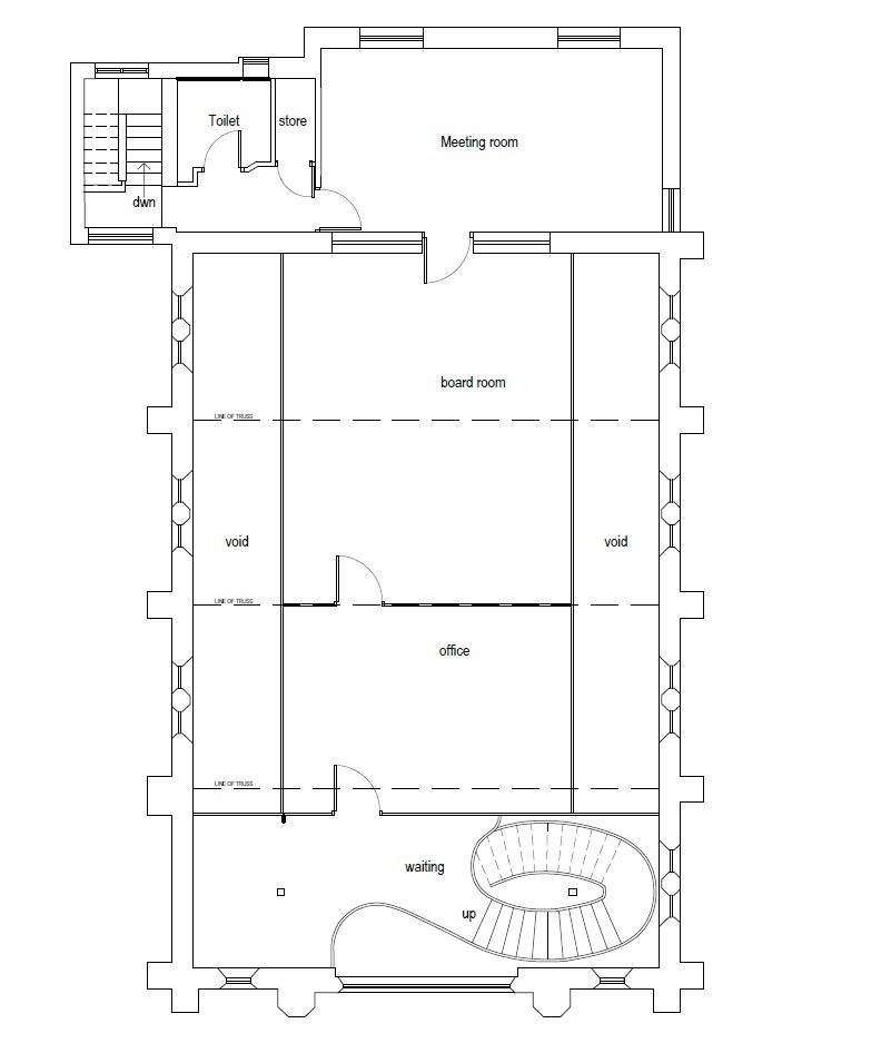
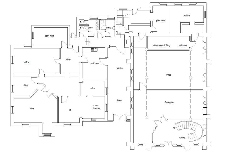
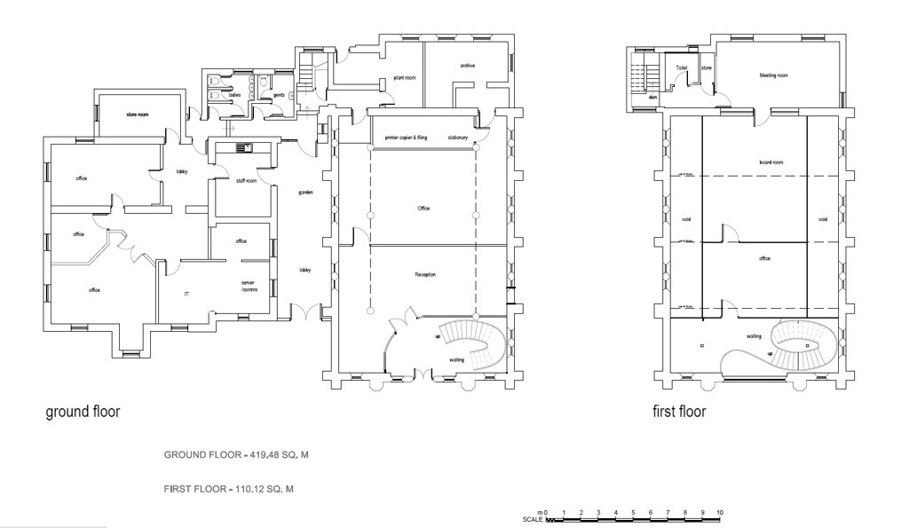
To the ground floor, the accommodation briefly comprises of open plan office/business space, reception/customer waiting area,
additional cellular offices, kitchen/staff break out room, stores, external garden area located between the former chapel and
church, archive room, plant room, boiler room, and ladies and gents WC's.

The first floor accommodation comprises 0pen plan office/business space accessed via a feature circular staircase. Additional office areas that have previously been utilised as a gym with additional WC / shower room.

DescriptionSq MSq Ft
Ground Floor:292.643,150
First Floor:107.301,155
Total:399.944,305

Outside
There is private parking for approximately 8 vehicles to the front of the property.
Approx Site Area
Approximately 0.09 Hectares (0.22 Acres).
Tenure
The property is held freehold under title number LAN97855.
Planning
For any pre-application advice, interested parties should consult directly with the Local Planning Authority: Wyre Council, Civic Centre, Breck Road, Poulton-le-Fylde, Lancashire, FY6 7PU. Telephone: 01253 891 000 Email: [email protected]
Costs
Details of the Buyer's Premium and any additional fees payable are contained within the legal documents.
General
1. All the information provided on our website is for indicative purposes only and interested parties should refer to the contents of the legal pack and rely upon their own due diligence as a prudent bidder.

2. PLEASE NOTE BIDDING COMMENCES ON TUESDAY 9TH DECEMBER AND CLOSES ON WEDNESDAY 10TH DECEMBER.

3. The property is entered in the 2023 Rating List as "Offices and Premises" with a Rateable Value of £31,500. The Rateable Value (RV) is not the amount payable.

4. Energy Performance Certificate = C.

Our Nearest Office

Liverpool 600x300

Liverpool

Joint Agent

Duxburys Commercial
Contact: Adam Taylor

You may also like

054

Chapel Court, 204 Fleetwood Road North, Thornton-Cleveleys, Lancashire, FY5 4BJ

Guide Price: £395,000 plus

069

3-5 Barton Avenue, Blackpool, Lancashire, FY1 6AP

Auction Ends: 26/11/2025

Guide Price: £75,000 plus

036

Unit 14-17, Metropolitan Business Park, Preston New Road, Blackpool, Lancashire, FY3 9LT

Auction Ends: 10/12/2025

Guide Price: £595,000 plus

Search Available
Online Auctions
Search online auction icon
Guide to
Buying at Auction
Buying guide icon
Guide to Selling
Your Property
Selling guide icon
Sign Up For
Auction Alerts
Alert icon