Lot
028
Auction Ends: 29/10/2025 11:18 - Bidding opens Tuesday 28th October 10:00 AM

Former Lock House, Armouries Drive, Leeds, West Yorkshire, LS10 1LE

Property Details
Location
Description
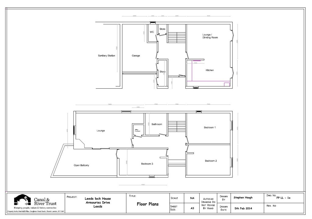
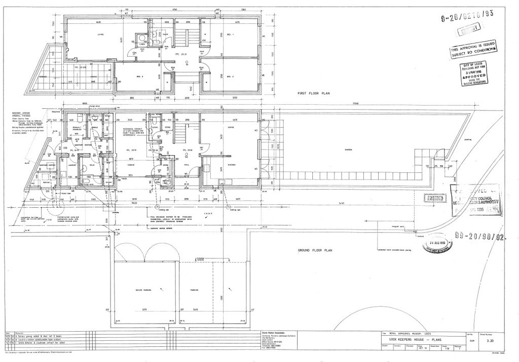
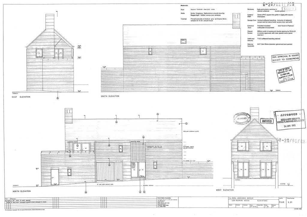
A rare opportunity to acquire this detached former lockhouse, sold with gardens, parking, and vacant possession. The property briefly comprises entrance hallway, living room, kitchen, integral garage, and further living space to the ground floor, with 3 bedrooms, a reception room, bathroom and terrace balcony overlooking the river to the first floor. Externally there are walled gardens along with hardstanding car park to the front/west of the property.

The property occupies a prime position at Leeds Dock, a vibrant mixed-use waterside destination just 400m from Leeds railway station and beside the Royal Armouries. Leeds is the regional hub of West Yorkshire, the UK's fourth largest city, and benefits from excellent road, rail and air links. Leeds Dock combines modern residential, commercial and leisure uses, with the River Aire and attractive riverside walk immediately to the north.

This unique and well-located property would be suitable for a number of uses, residential or commercial, subject to any necessary consents.
Accommodation

Ground floorEntrance hallway, living room, kitchen, integral garage, living space
First floor3 x bedroom, reception room, bathroom, terrace
Approx. floor area190 sq m (2,043 sq ft)
Approx Site Area
0.14 acres (0.06 hectares).
Tenure
The property is sold freehold.
Planning
We understand the property was build for residential use and was last used (in conjunction with approved planning) as an office premises. For any pre-application advice, interested parties should consult directly with the Local Planning Authority: Leeds City Council, Civic Hall, Leeds, LS1 1UR. Telephone: 0113 247 8000. Email: [email protected].
Costs
Details of the Buyer's Premium and any additional fees payable are contained within the legal documents.
VAT
VAT is payable on completion at the prevailing rate in addition to the gavel price.
General
1. All the information provided on our website is for indicative purposes only and interested parties should refer to the contents of the legal pack and rely upon their own due diligence as a prudent bidder.

2. PLEASE NOTE BIDDING COMMENCES ON TUESDAY 28TH OCTOBER AND CLOSES ON WEDNESDAY 29TH OCTOBER.

3. Energy Performance Certificate = D
Addendum
Addendum to CPSE 7 reply 12.1:
No other than a parking enforcement company (Vehicle Control Services Limited) that monitors the parking spaces on the Property under a contract dated 17 February 2021. Contract to be transferred on completion under clause 6.4 Buyer to contact control company directly.

Our Nearest Office

Leeds 600x300

Leeds

You may also like

010

Calverley Library Building, Thornhill Street, Calverley, Pudsey, West Yorkshire, LS28 5PD

Auction Ends: 28/01/2026

Guide Price: £185,000 plus

013

Development Opportunity At 213a Bradford Road, East Ardsley, Wakefield, West Yorkshire, WF3 2DL

Auction Ends: 28/01/2026

Guide Price: £150,000 plus

027

Former Gipton South Children's Centre, Coldcotes Grove, Gipton, Leeds, West Yorkshire, LS9 6QJ

Auction Ends: 28/01/2026

Guide Price: £290,000 plus

048

Development Opportunity At Strawberry Lane, Leeds, West Yorkshire, LS12 1SF

Auction Ends: 28/01/2026

Guide Price: £365,000 plus

058

Former Knowle Manor Residential Home, Tennyson Terrace, Morley, Leeds, West Yorkshire, LS27 8QP

Auction Ends: 28/01/2026

Guide Price: £380,000 plus

076

21 Main Street, Esholt, Shipley, West Yorkshire, BD17 7QZ

Auction Ends: 28/01/2026

Guide Price: £200,000 plus

015

Abbey Lodge & Depot, Morris Lane, Kirkstall, Leeds, West Yorkshire, LS5 3EH

Auction Ends: 25/02/2026

Guide Price: £450,000 plus

033

Development Land At Roundhay Road, Leeds, West Yorkshire, LS7 3AJ

Auction Ends: 25/02/2026

Guide Price: £300,000 plus

Search Available
Online Auctions
Search online auction icon
Guide to
Buying at Auction
Buying guide icon
Guide to Selling
Your Property
Selling guide icon
Sign Up For
Auction Alerts
Alert icon