We're now part of BTG Eddisons - Visit our new website BTGEddisonsPropertyAuctions.com
Lot
062
Auction: August 2025 Online Auction 27/08/2025 - Bidding opens Tuesday 26th August 12:00 PM

19 Market Street, Hemsworth, Pontefract, West Yorkshire, WF9 4JY

Property Details
Location
Auction Details
Description
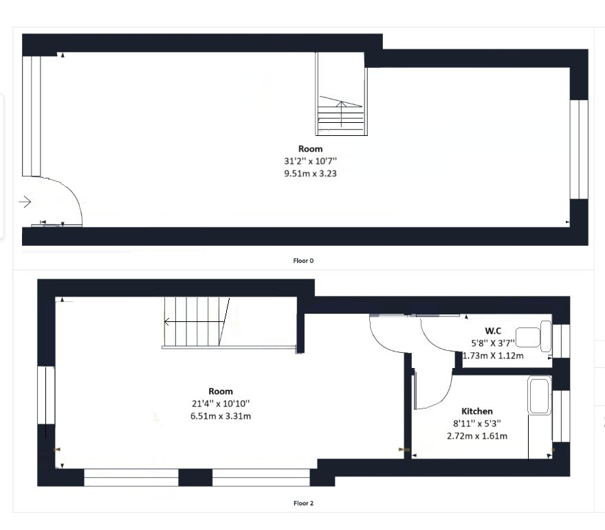
An end of terrace commercial property of approx. 595.3 Sq Ft (55.3 Sq M) prominently located on Market Street. The property is in good order and well presented throughout with gas central heating and double glazing and although latterly used as office space would suite a variety of different uses (subject to planning permission / consents / change of use). The accommodation comprises a ground open plan office / retail unit whilst to the first floor is a further open plan layout with a kitchen & W.C . Outside there is a rear car park providing off street parking.
Accommodation
Ground Floor - 318 Sq Ft (29.55 Sq M):Open Plan Office / Retail Space
First Floor - 277 Sq Ft (25.75 Sq M):Open Plan Office Space, Kitchen, W.C
Total:595.3 Sq Ft ( 55.3 Sq M)


Approx Site Area
Approximately 114 Sq M (136 Sq Yds).
Planning
For any pre-application advice, interested parties should consult directly with the Local Planning Authority: Wakefield Metropolitan District Council, Wakefield One, Burton Street, Wakefield, WF1 2DD. Telephone: 0345 8 506 506. Email: [email protected]
Costs
Details of the Buyer's Premium and any additional fees payable are contained within the legal documents.
General
1. All the information provided on our website is for indicative purposes only and interested parties should refer to the contents of the legal pack and rely upon their own due diligence as a prudent bidder.

2. PLEASE NOTE BIDDING COMMENCES ON TUESDAY 26TH AUGUST AND CLOSES ON WEDNESDAY 27TH AUGUST.

3. The property is entered in the 2023 Rating List as "Offices and Premises" with a Rateable Value of £4,150. The Rateable Value (RV) is not the amount payable.

4. Energy Performance Certificate = C.

Our Nearest Office

Leeds 600x300

Leeds

Search Available
Online Auctions
Search online auction icon
Guide to
Buying at Auction
Buying guide icon
Guide to Selling
Your Property
Selling guide icon
Sign Up For
Auction Alerts
Alert icon