We're now part of BTG Eddisons - Visit our new website BTGEddisonsPropertyAuctions.com
Lot
018
Auction: 26th May 2026 Multi-Lot Timed Auction 26/05/2026 - Bidding opens Tuesday 26th May 10:00 AM

6-8 Harrow Place, Blackpool, Lancashire FY4 1RP

Guide Price
£228,000 plus
We've unified our Auction Brands
If you're interested in this lot visit BTG Eddisons Property Auctions to book a viewing, submit an offer, send an enquiry and more.
View more details about this property on our new auction website
Share this Property
Property Details
Location
Auction Details
Description
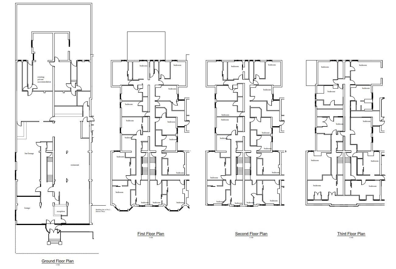
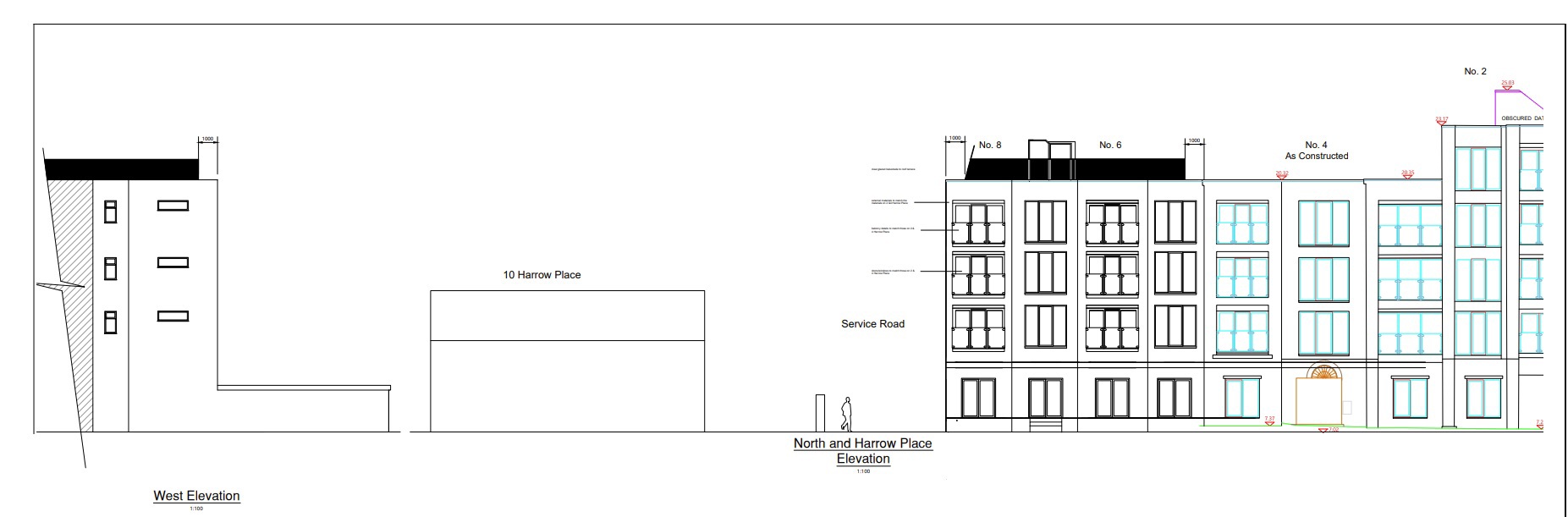
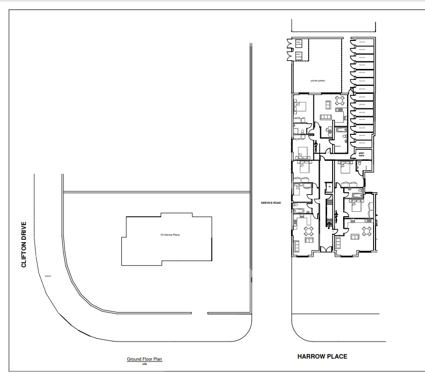
A residential re-development opportunity adjoining the recently completed Coastal Point development, in the South Shore area of Blackpool, approximately half a mile from Blackpool Pleasure Beach.

The property benefits from planning consent for conversion to provide 15no. apartments and parking spaces and sits on a site of approximately 0.06 Hectares (0.15 Acres). We understand that all planning conditions have been discharged, with development being able to commence from June 2026. In addition, a s106 contribution of £35,000 is not payable until first occupation.

The property may be suitable for alternative uses, subject to obtaining the necessary consents.
Accommodation

The proposed development will provide the following accommodation:

Ground Floor
Apartment 1: 2 Bedrooms / 61.4 Sq M (661 Sq Ft)

Apartment 2: 2 Bedrooms / 83.0 Sq M (893 Sq Ft)

Apartment 3: 2 Bedrooms / 83.2 Sq M (896 Sq Ft)

First Floor
Apartment 4: 2 Bedrooms / 77.5 Sq M (834 Sq Ft)

Apartment 5: 2 Bedrooms / 77.9 Sq M (839 Sq Ft)

Apartment 6: 1 Bedroom / 51.4 Sq M (553 Sq Ft)

Apartment 7: 2 Bedrooms / 63.5 Sq M (684 Sq Ft)

Second Floor
Apartment 8: 2 Bedrooms / 77.5 Sq M (834 Sq Ft)

Apartment 9: 2 Bedrooms / 77.9 Sq M (839 Sq Ft)

Apartment 10: 1 Bedroom / 51.4 Sq M (553 Sq Ft)

Apartment 11: 2 Bedrooms / 63.5 Sq M (684 Sq Ft)

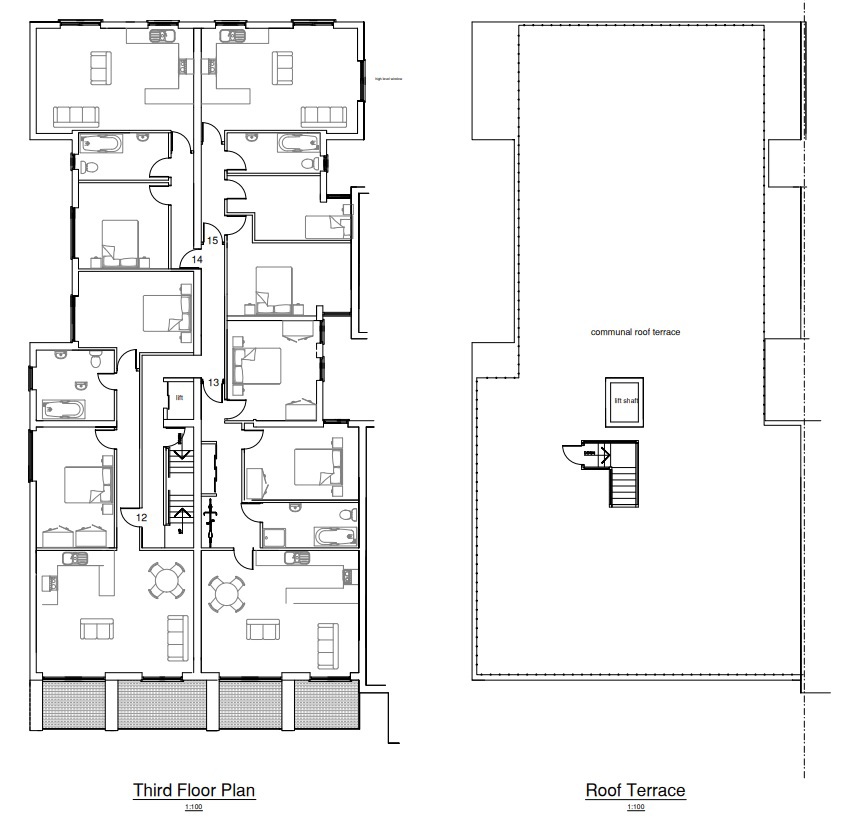
Third Floor
Apartment 12: 2 Bedrooms / 77.5 Sq M (834 Sq Ft)

Apartment 13: 2 Bedrooms / 77.9 Sq M (839 Sq Ft)

Apartment 14: 1 Bedroom / 51.4 Sq M (553 Sq Ft)

Apartment 15: 2 Bedrooms / 63.5 Sq M (684 Sq Ft)

Costs
Auction Details

The sale of this property will take place on the stated date by way of Multi lot timed auction and is being sold under the Unconditional sale type.

Binding contracts will be exchanged at the point of sale.

All sales are subject to our Common Auction Conditions and Bidder Terms. Properties located in Scotland and Northern Ireland will be subject to applicable local laws.

Auction Deposit and Fees

The following deposits and non- refundable auctioneers fees apply:

• 10% deposit (subject to a minimum of £5,000)

• Buyer’s Fee of 1.8% of the purchase price (subject to a minimum of £2,400 inc. VAT)

There may be additional fees listed in the Special Conditions of Sale, which will be available to view within the Legal Pack. You must read the Legal Pack carefully before bidding.

Additional Information

For full details about our auction processes, please refer to the Bidder Terms which can be viewed on our home page.

This explains the types of auction and sale methods we offer, the bidding registration process, your payment obligations, and how to view the Legal Pack (and any applicable home report for residential Scottish properties).

Guide Price & Reserve Price

Each property sold is subject to a Reserve Price. The Reserve Price will be within + or - 10% of the Guide Price. The Guide Price is issued solely as a guide so that a buyer can consider whether or not to pursue their interest. A full definition can be found within the Buyers Terms. 

Our Nearest Office

Liverpool 600x300

Liverpool

Joint Agent

You may also like

001
Multi-Lot Timed Auction

Exchange House, 6 Marton Road, Middlesbrough, North Yorkshire TS1 1DB

Guide Price: £380,000 plus

002
Multi-Lot Timed Auction

Former Public Conveniences, Park Green, Macclesfield, Cheshire SK11 7NH

Guide Price: £40,000

003
Multi-Lot Timed Auction

Land and Garages , Ranby Road , Endcliffe Park, Sheffield, South Yorkshire S11 7AJ

Guide Price: £125,000

004
Multi-Lot Timed Auction

Land At Cass Yard, Union Street, Wakefield, West Yorkshire WF1 3AE

Guide Price: £5,000 plus

005
Multi-Lot Timed Auction

Unit 1 Slate House, Oakwood Court, City Road, Bradford, West Yorkshire BD8 8JY

Guide Price: £65,000 plus

006
Multi-Lot Timed Auction

Land at Bent Street & Elm Street, Newsome, Huddersfield, West Yorkshire HD4 6NX

Guide Price: £130,000 plus

007
Multi-Lot Timed Auction

162-164 Blacker Road, Huddersfield, West Yorkshire HD1 5HH

Guide Price: £100,000 plus

008
Multi-Lot Timed Auction

40 Hawthorn Road, Blackpool, Lancashire FY1 2RE

Guide Price: £45,000 plus

Search Available
Online Auctions
Search online auction icon
Guide to
Buying at Auction
Buying guide icon
Guide to Selling
Your Property
Selling guide icon
Sign Up For
Auction Alerts
Alert icon