We're now part of BTG Eddisons - Visit our new website BTGEddisonsPropertyAuctions.com
Lot
006
Auction: 24th February 2026 Multi-Lot Timed Auction 24/02/2026 - Bidding opens Tuesday 24th February 10:00 AM

5-19 Westfield Street, St. Helens, Merseyside WA10 1QA

Available at
£550,000
We've unified our Auction Brands
If you're interested in this lot visit BTG Eddisons Property Auctions to book a viewing, submit an offer, send an enquiry and more.
View more details about this property on our new auction website
Share this Property
Property Details
Location
Auction Details
Description
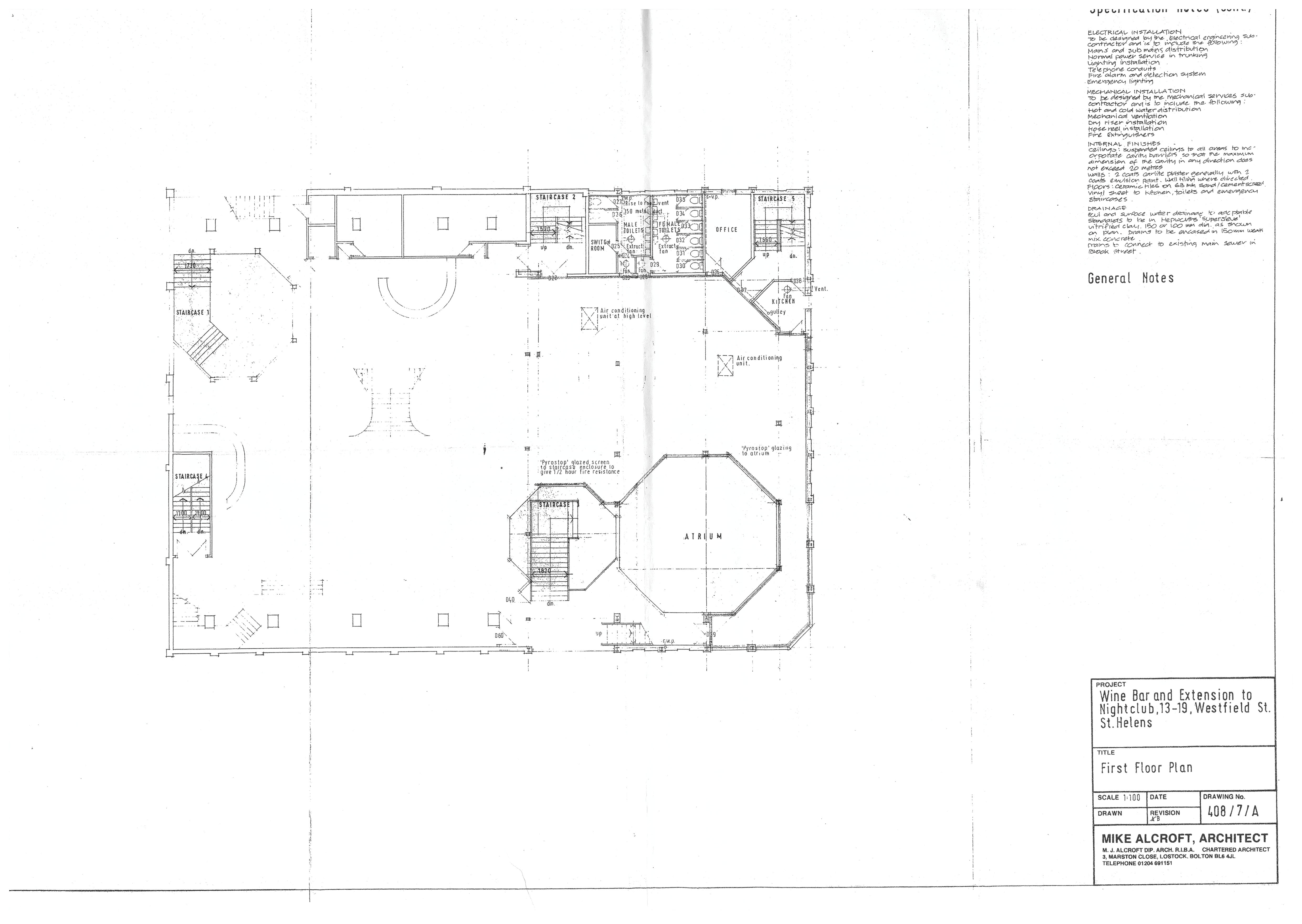
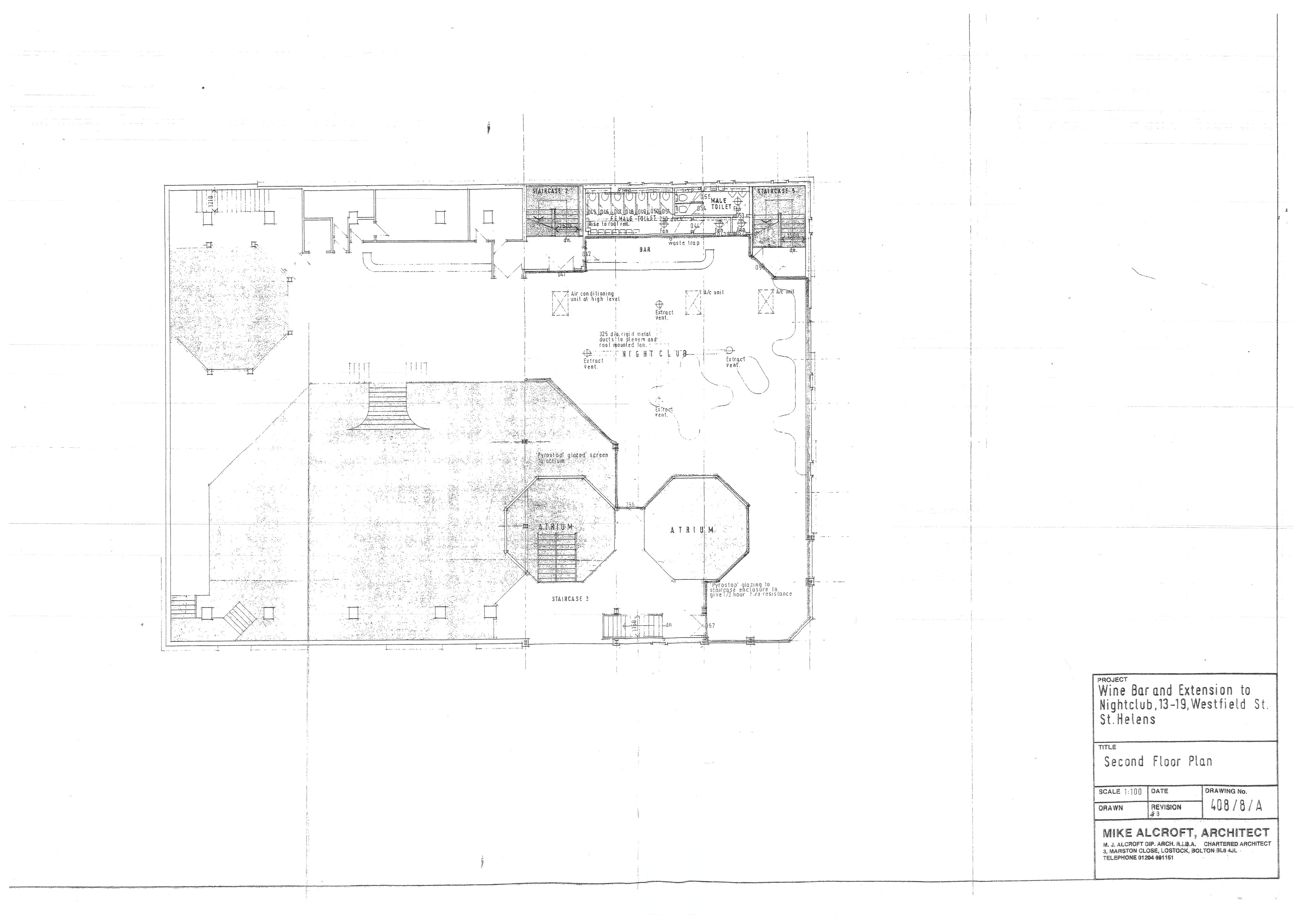
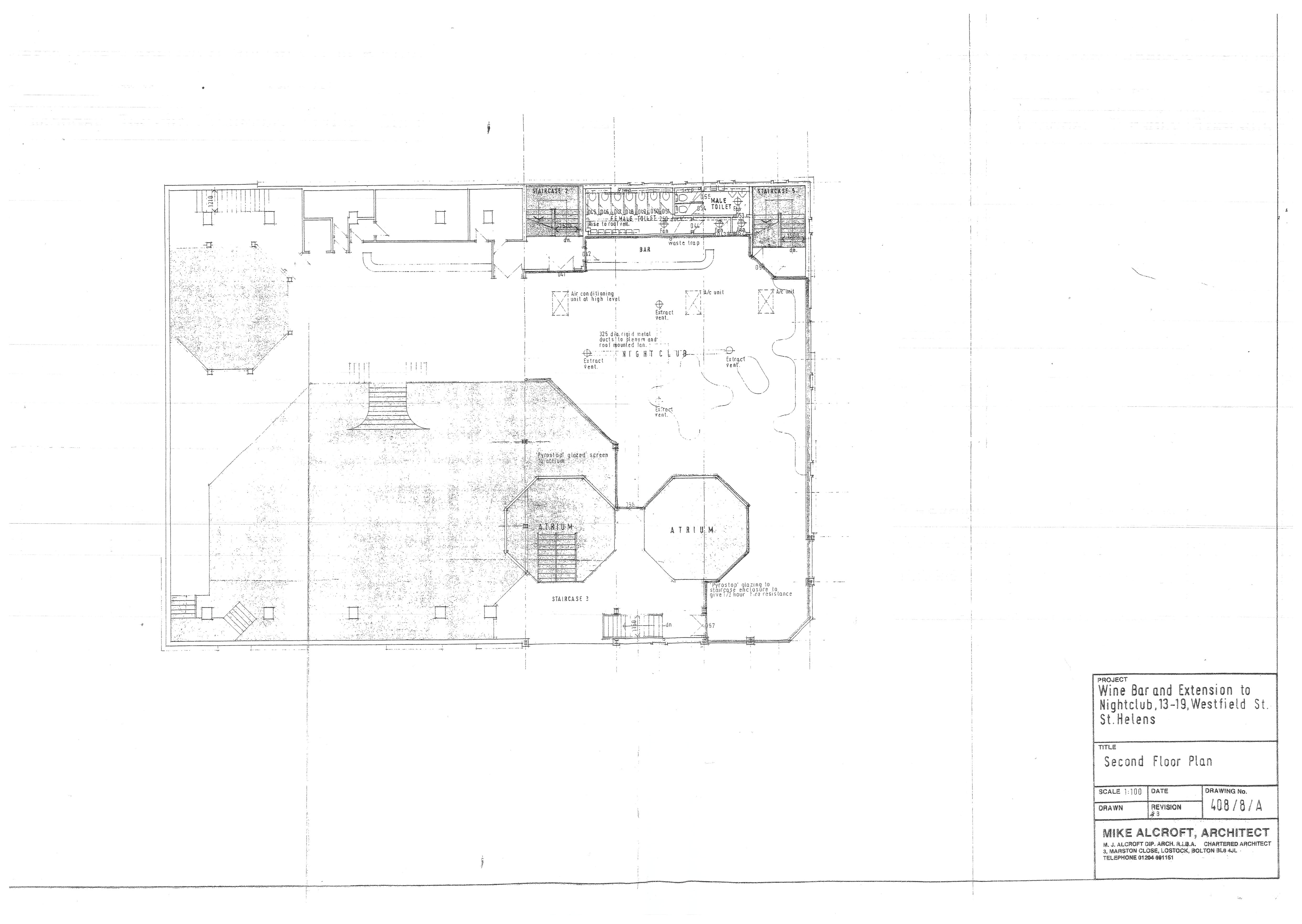
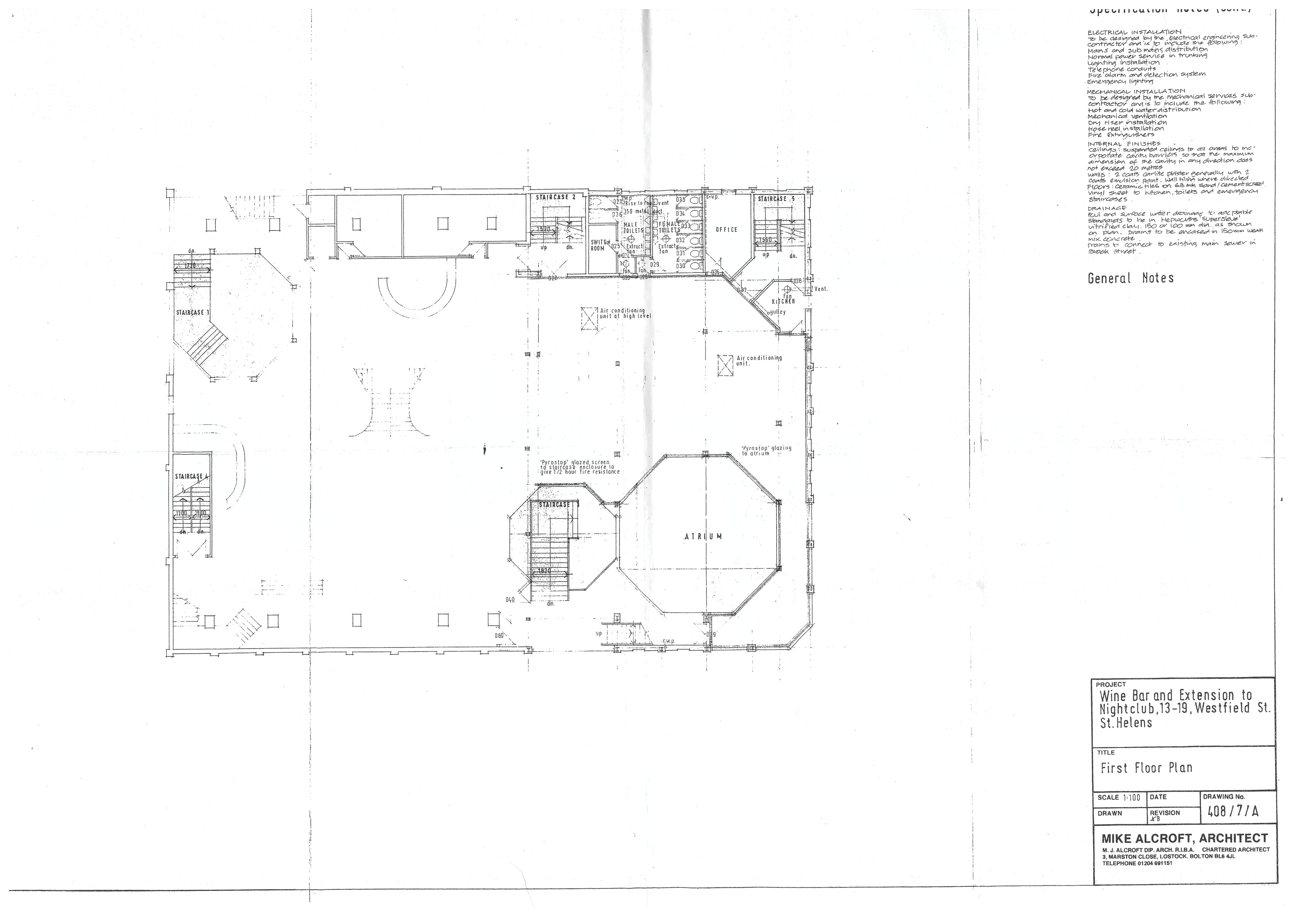
A substantial town centre investment, asset management and redevelopment opportunity. The property comprises a modern, purpose built parade of shops with former nightclub to the upper floors, constructed in 1997, extending to approximately 1,800 Sq M (19,375 Sq Ft) GIA in total. The ground floor comprises 5no. retail units, four of which are tenanted, and producing a combined income of £45,600 per annum. The vacant retail unit is fully fitted out as a chip shop and one of the ground floor entrances to the former nightclub could be converted into an additional retail unit. There are storage and loading bay areas to the rear. The upper floors comprise a vacant former nightclub and may be suitable for conversion/redevelopment to residential use, subject to obtaining the necessary consents
Costs
Auction Details

The sale of this property will take place on the stated date by way of Multi lot timed auction and is being sold under the Unconditional sale type.

Binding contracts will be exchanged at the point of sale.

All sales are subject to our Common Auction Conditions and Bidder Terms. Properties located in Scotland and Northern Ireland will be subject to applicable local laws.

Auction Deposit and Fees

The following deposits and non- refundable auctioneers fees apply:

• 10% deposit (subject to a minimum of £5,000)

• Buyer’s Fee of 1.8% of the purchase price (subject to a minimum of £2,400 inc. VAT)

There may be additional fees listed in the Special Conditions of Sale, which will be available to view within the Legal Pack. You must read the Legal Pack carefully before bidding.

Additional Information

For full details about our auction processes, please refer to the Bidder Terms which can be viewed on our home page.

This explains the types of auction and sale methods we offer, the bidding registration process, your payment obligations, and how to view the Legal Pack (and any applicable home report for residential Scottish properties).

Guide Price & Reserve Price

Each property sold is subject to a Reserve Price. The Reserve Price will be within + or - 10% of the Guide Price. The Guide Price is issued solely as a guide so that a buyer can consider whether or not to pursue their interest. A full definition can be found within the Buyers Terms. 
General


1. All the information provided on our website is for indicative purposes only and interested parties should refer to the contents of the legal pack and rely upon their own due diligence as a prudent bidder.


2. PLEASE NOTE BIDDING COMMENCES ON TUESDAY 24TH FEBRUARY AND CLOSES ON WEDNESDAY 25TH FEBRUARY.


3. The properties are entered in the 2023 Rating List as follows:

5 Westfield Street: "

Public House and Premises"

- Rateable Value of £7,500.

7 Westfield Street: "

Shop and Premises"

- Rateable Value of £9,800.

9 Westfield Street: "

Shop and Premises"

- Rateable Value of £9,900.

11 Westfield Street: "

Shop and Premises"

- Rateable Value of £9,800.

5-19, Westfield Street: "

Club and Premises"

- Rateable Value of £87,000.

The Rateable Value (RV) is not the amount payable.


4. Details of the Buyers Premium and any additional fees payable are contained within the legal documents.


5. We understand the retail units are let by way of verbal Tenancy at Will agreements, as follows:

5 Westfield Street (Cocos) - £600 pcm / £7,200 pa
7 Westfield Street (Vape Kingdom UK) - £600 pcm / £7,200 pa
9 Westfield Street (Heaven Sent) - £600 pcm / £7,200 pa
11 Westfield Street (Vacant Former Chip Shop)
15 Westfield Street (Entrance to Nightclub)
17-19 Westfield Street (Empire) - £2,000 pcm / £24,000 pa
Upper Floors, 5-19 Westfield Street (Vacant)


6. Please be advised that whilst our joint agent has conducted an inspection, the auctioneers have not personally inspected the property. Prospective buyers are advised to make a viewing enquiry and any other necessary independent enquiries before placing their bid, as this will be binding.

Addendum
The properties are known at the land registry as '5, 7, 7a Westfield Street, 11 Westfield Street, 13 Westfield Street, 15 Westfield Street and 17-19 Westfield Street, St Helens, Merseyside, WA10 1QA.' The tenancy agreements are not provided in the legal pack and therefore we cannot confirm the rental figure given in our marketing.

Our Nearest Office

Liverpool 600x300

Liverpool

You may also like

001
Sold at auction

Ashfield Farm, Leathley Lane, Castley, Otley, North Yorkshire LS21 2JP

Guide Price: £685,000 plus

002
Sold at auction

Former Great Fryup Residential Centre, Danby, Fryup, Whitby, North Yorkshire YO21 2AP

Guide Price: £160,000 plus

003
Sold Prior to Auction

Land at 137a Ruabon Road, Wrexham, Wrexham LL13 7RB

Guide Price: £20,000

004
Multi-Lot Timed Auction

Edgefold Farmhouse & Barn, Edge Lane, Bolton, Lancashire BL7 0NQ

Guide Price: £500,000 plus

005
Sold at auction

Otley Cemetery Lodge, Pool Road, Otley, West Yorkshire LS21 1HL

Guide Price: £185,000 plus

007
Sold Prior to Auction

Mills Brow Farm, Atherton, Manchester, Lancashire M46 9HL

Guide Price: £320,000 plus

008
Sold at auction

712 City Road, Sheffield, South Yorkshire S2 1GJ

Guide Price: £60,000 plus

009
Sold at auction

Ground rents at, Backfield Rise, Chapeltown, Sheffield, South Yorkshire S35 2YR

Guide Price: £3,000 plus

Search Available
Online Auctions
Search online auction icon
Guide to
Buying at Auction
Buying guide icon
Guide to Selling
Your Property
Selling guide icon
Sign Up For
Auction Alerts
Alert icon