Lot
001
Auction Ends: 26/11/2025

The Maltings, Flaxley Road, Selby, North Yorkshire, YO8 4BG

Property Details
Location
Description
Freehold Mixed-Use and Town Centre Investment & Development Opportunity:

Part income-producing with 23 flats let at £134,640pa plus vacant commercial space with extant planning consent for 18 additional flats and commercial units. Large car park. Excellent potential to enhance income: projected gross rent approx. £300,000 p.a (buyers should rely on their own estimations).

The property is prominently situated on Flaxley Road, Selby, a popular market town in North Yorkshire with excellent transport links to York, Leeds, and Hull. Local amenities, schools, and retail facilities are all within easy reach.

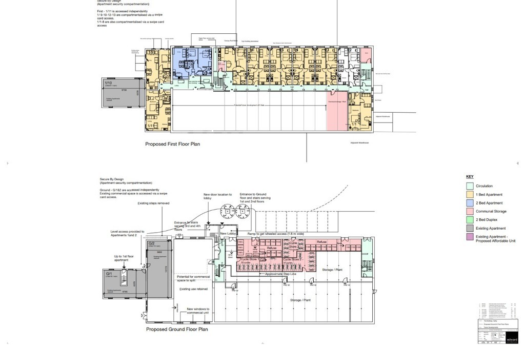
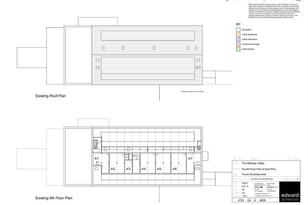
A substantial mixed-use building arranged over 5 floors together with a large car park. The third and fourth floors provide 23 self-contained flats, currently producing a total gross rent of £134,640 per annum. The ground, first and second floors comprise vacant offices and a restaurant, with planning permission granted (and extant) in June 2022 for the conversion of these floors to provide 18 flats along with commercial units. Estimations suggest the gross rental income of the existing and planned units would be £300,000pa.

Further potential includes conversion of 2 existing flats to 2 bedroom duplexes and the acquisition (negotiations underway) of adjacent land for addition of 8 further flats (STP); we estimate this may increase the rental yield by approx. £75,000pa. Development of the existing car park (STP) may also be investigated.

Investment Considerations:

Attractive part-income producing opportunity with immediate rental return.

Planning permission in place for further residential conversion and commercial space.

Potential to significantly enhance income and capital value through development.

Potential to develop car park and acquire adjacent land for further development (STP).

Situated in a strong commuter town with established rental demand.
Approx Site Area
0.36 hectares (0.88 acres),
Tenure
The property is sold freehold.
Planning
Planning permission (reference 2019/0961/FULM) was granted in 2022 for conversion and change of use of the ground, first and second floor of The Maltings to 18 flats on the first and second floor and store/plant room on the ground floor following demolition of the squash court (since completed securing the planning in perpetuity).

Planning enquiries should be directed to North Yorkshire Council: https://www.northyorks.gov.uk/planning-and-conservation
General
1. All the information provided on our website is for indicative purposes only and interested parties should refer to the contents of the legal pack and rely upon their own due diligence as a prudent bidder.

2. PLEASE NOTE BIDDING COMMENCES ON TUESDAY 25TH NOVEMBER AND CLOSES ON WEDNESDAY 26TH NOVEMBER.

3. Energy Performance Certificate = TBC

Our Nearest Office

Leeds 600x300

Leeds

You may also like

104

Woodland South Of A19, Barlby Road, Selby, North Yorkshire, YO8 5AF

Guide Price: £50,000 plus

115

3 Temple Lane, Copmanthorpe, York, North Yorkshire, YO23 3TB

Guide Price: £455,000 plus

Search Available
Online Auctions
Search online auction icon
Guide to
Buying at Auction
Buying guide icon
Guide to Selling
Your Property
Selling guide icon
Sign Up For
Auction Alerts
Alert icon