309-311 Ecclesall Road, Sheffield, South Yorkshire, S11 8NX
| COMMERCIAL | See Floor plans |
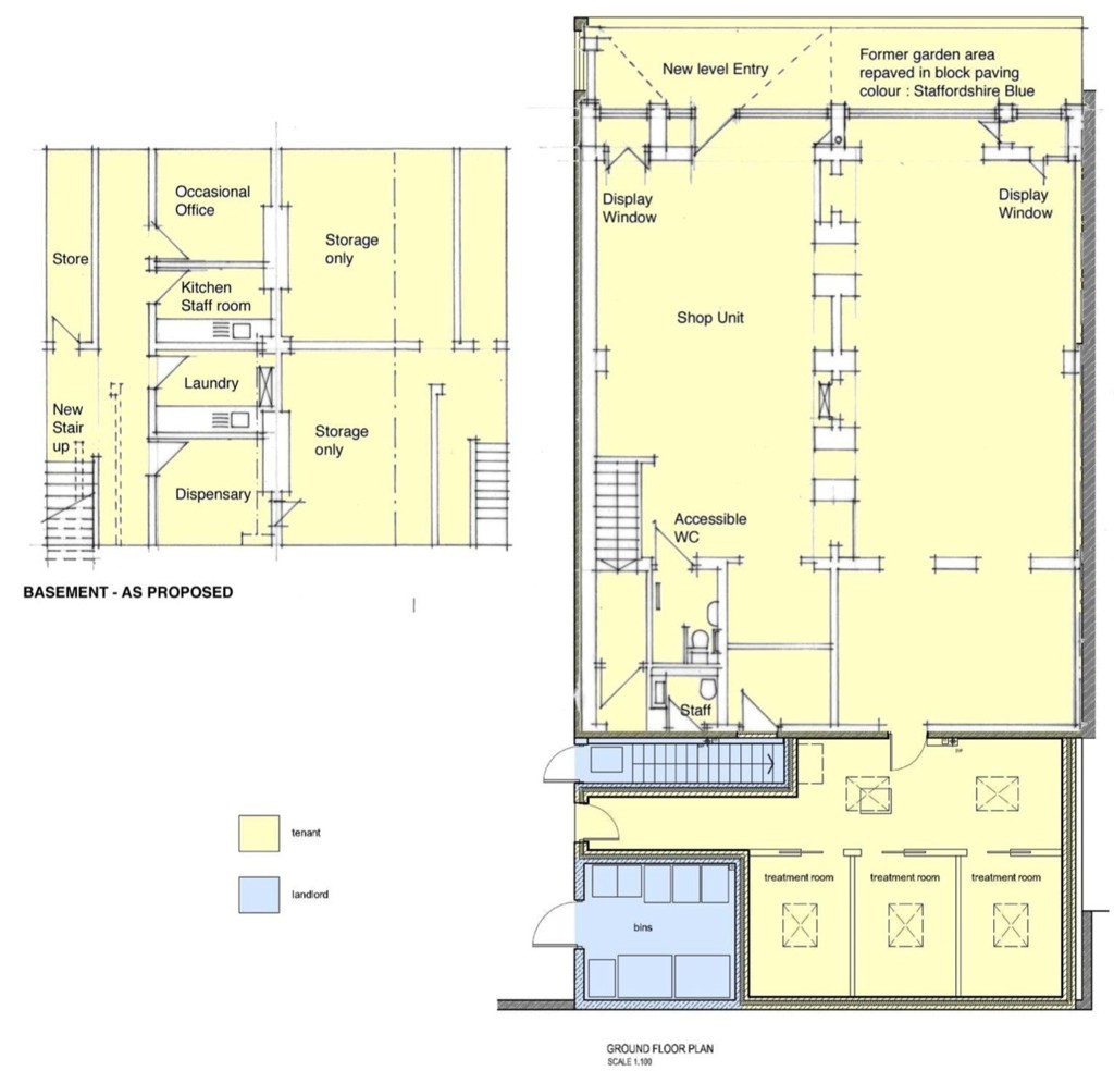
| Ground Floor | Main Salon, WCs, Rear Area and Treatment Rooms |
| Basement | Storage, Occasional Office, Staff Kitchen, Laundry & Dispensary |
| UPPER FLOOR RESIDENTIAL | See Floor plans |
| 309A Ecclesall Road | 311A Ecclesall Road |
| First Floor | First Floor |
| Lounge/Kitchen, 2 Bedrooms & 2 Shower Room/WCs | Lounge/Kitchen,3 Bedrooms, Shower Room & Separate WC |
| Second Floor | Second Floor |
| 3 Bedrooms | 3 Bedrooms & Shower Room/WC |
| 309/311 Ecclesall Road - Commercial | Annual Income | |
Let to CB Hair Loss Ltd for 12 years until 6th October 2035 at £56,000pa with 4 yearly rent reviews (next 7th October 2027) The tenant contributes to insurance premium (usually 50%) and 50% of any repairs needed in addition to £500 service charge | £56,000 | |
| 309A Ecclesall Road - Residential | ||
| Currently let to 4 students at £99 pppw until June 2026 | £20,592 | |
| Will be advertised at £99pppw from July 1st 2026 for a group of 5 students | (£25,740) | |
| 311A Ecclesall Road - Residential | ||
| Currently let to a group of 6 students until June 2026 | £28,392 | |
| * Will be marketed at £99pppw from July 1st 2026 to a group of 6 students | (£30,888) | |
| CURRENT TOTAL | £105,484 pa | |
| POTENTIAL INCOME | £113,128 pa |
Sheffield
Thank you for your viewing request. A member of our team will be in touch shortly to arrange this with you.
Thank you for your viewing request. A member of the team will be in touch to confirm the viewing details shortly.
Unfortunately, there is currently no access to this property, so no viewings are possible.
We've noted your request and should the situation change we would be in touch however this is unlikely to be the case.
Before you proceed, please head over to your account and complete your profile. We just need your name, email address and phone number, thank you.
Property: 309-311 Ecclesall Road, Sheffield, South Yorkshire, S11 8NX
Auction: Online Auction - 24/09/2025
Before you proceed, please head over to your account and complete your profile. We just need your name, email address and phone number, thank you.
Property: 309-311 Ecclesall Road, Sheffield, South Yorkshire, S11 8NX
Auction: Online Auction - 24/09/2025
Before you proceed, please head over to your account and complete your profile. We just need your name, email address and phone number, thank you.
We recommend monitoring for any updates or changes on the lead up to the auction.
Please wait while we prepare your download.
Before you proceed, please head over to your account and complete your profile. We just need your name, email address and phone number, thank you.
Online legal documents are made available for assistance purposes only and without guarantee or warranty as to their accuracy or completeness. It is your responsibility as the buyer to check whether the legal documents for the lot you are interested in are complete and/or whether any document has been revised or replaced in the lead up to the Auction.
Import Note on Legal Packs
Hard copies of legal packs will no longer be provided at our auctions venue, so please make sure you download them via our website prior to the auction.