We're now part of BTG Eddisons - Visit our new website BTGEddisonsPropertyAuctions.com
Lot
102
Auction: July 2025 Online Auction 30/07/2025 - Bidding opens Tuesday 29th July 10:00 AM

1-3 Ravendale Street North, Scunthorpe, Lincolnshire, DN15 6NE

Property Details
Location
Auction Details
Description
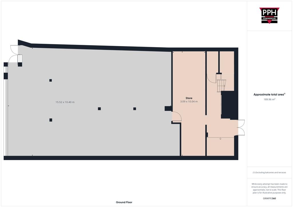
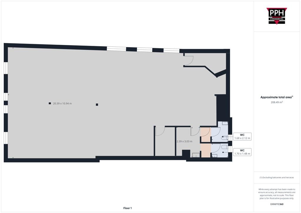
End of parade, double-fronted retail premises of approximately 4,063 sq ft (377.67 sq m) and with rear loading area. The property comprises an open-plan ground floor retail space with LED lighting, air conditioning, and front security shutter, with ancillary storage/office space, to the ground floor; there is additional office/storage area, kitchen, and staff facilities to the first floor. The property is sold with vacant possession and would be suitable for a range of retail or commercial uses (STP).

The property is located on Ravendale Street North, close to Scunthorpe's pedestrianised High Street, in a well-established town centre retail area. The location offers good access to local amenities, public parking, and a range of nearby retail and leisure operators. Scunthorpe serves as the principal commercial centre for North Lincolnshire, with a catchment population of approximately 152,000. The town benefits from strong transport connections via the M180 and M181 motorways, as well as proximity to Humberside and Robin Hood Airports.
Accommodation
StoreyDescriptionFloor Area
Ground floor

Retail

Office/store

158.32 sq m (1,703 sq ft)

28.44 sq m (306 sq ft)


First floorOffice & kitchen190.91 sq m (2,054 sq ft)
Total
377.67 sq m (4,063 sq ft)




Costs
Details of the Buyer's Premium and any additional fees payable are contained within the legal documents.
General
1. Buyers should note that the approximate floor areas have been provided by our joint agent PPH Commercial.

2. All the information provided on our website is for indicative purposes only and interested parties should refer to the contents of the legal pack and rely upon their own due diligence as a prudent bidder.

3. PLEASE NOTE BIDDING COMMENCES ON TUESDAY 29TH JULY AND CLOSES ON WEDNESDAY 30TH JULY.

Energy Performance Certificate = B

Our Nearest Office

Sheffield 600x300

Sheffield

Joint Agent

Contact: Sam Fallowfield
Search Available
Online Auctions
Search online auction icon
Guide to
Buying at Auction
Buying guide icon
Guide to Selling
Your Property
Selling guide icon
Sign Up For
Auction Alerts
Alert icon