We're now part of BTG Eddisons - Visit our new website BTGEddisonsPropertyAuctions.com
Lot
069
Auction: August 2025 Online Auction 27/08/2025 - Bidding opens Tuesday 26th August 12:00 PM

2 Manchester Road, Nelson, Lancashire, BB9 7EG

Property Details
Location
Auction Details
Description
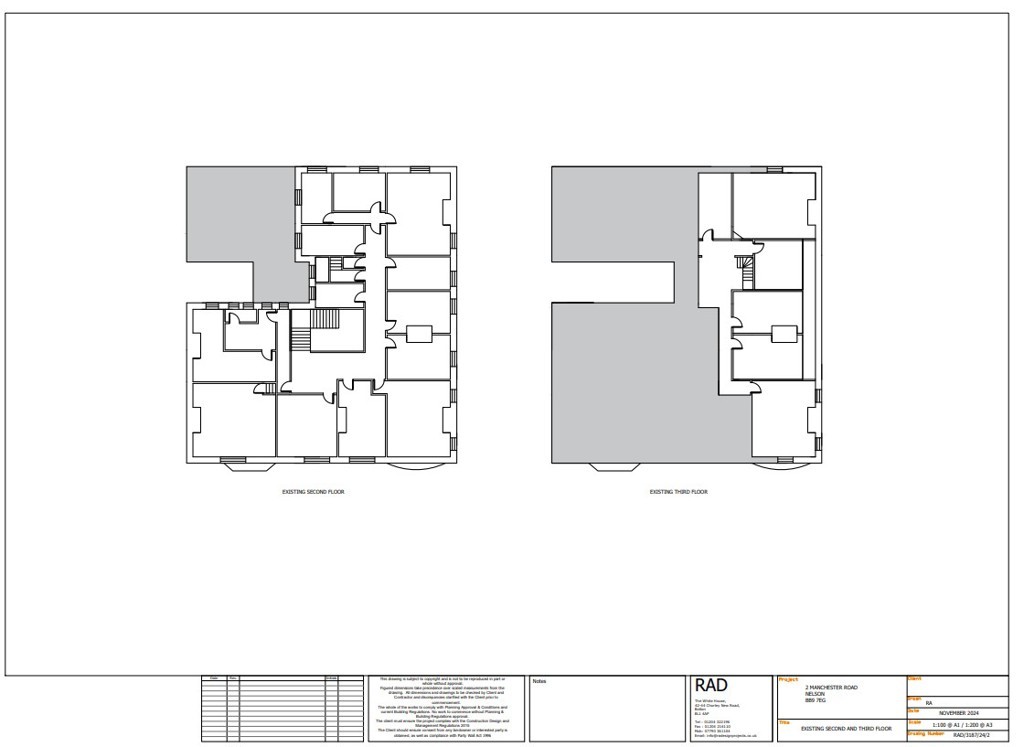
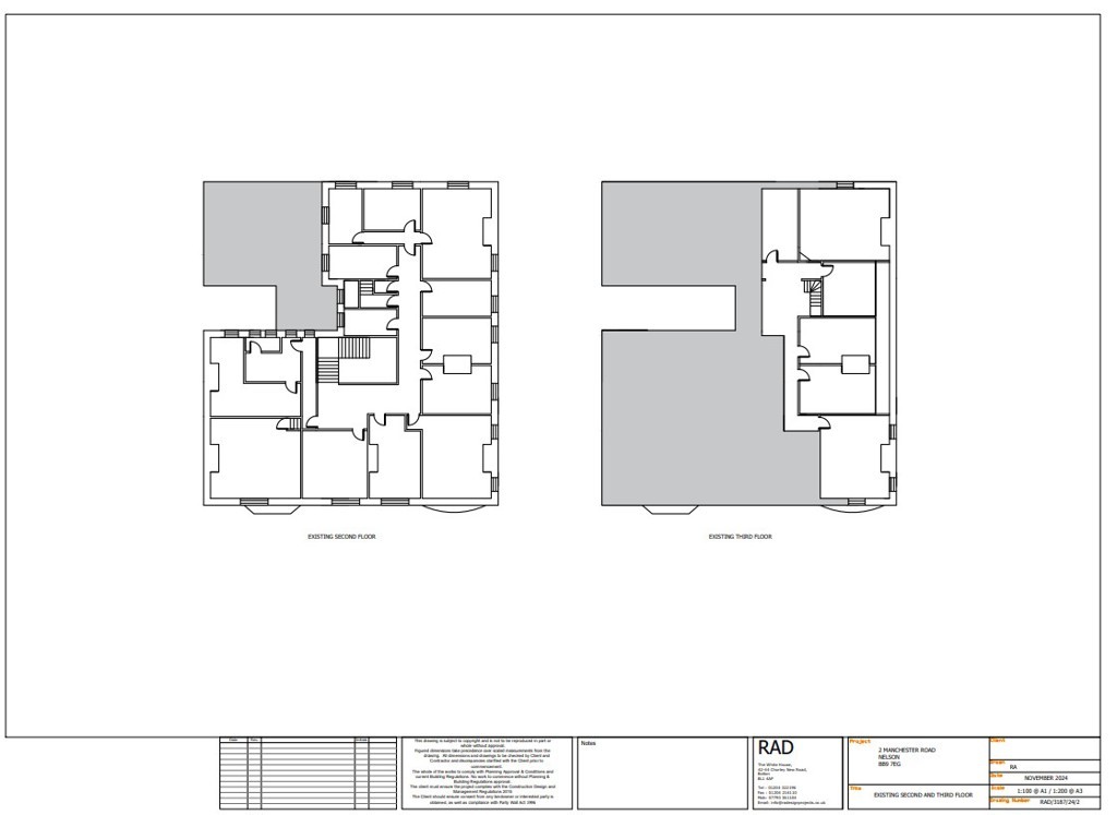
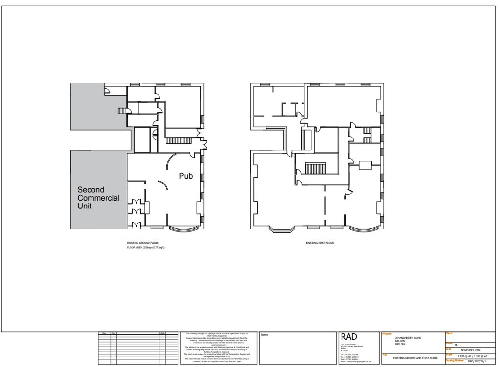
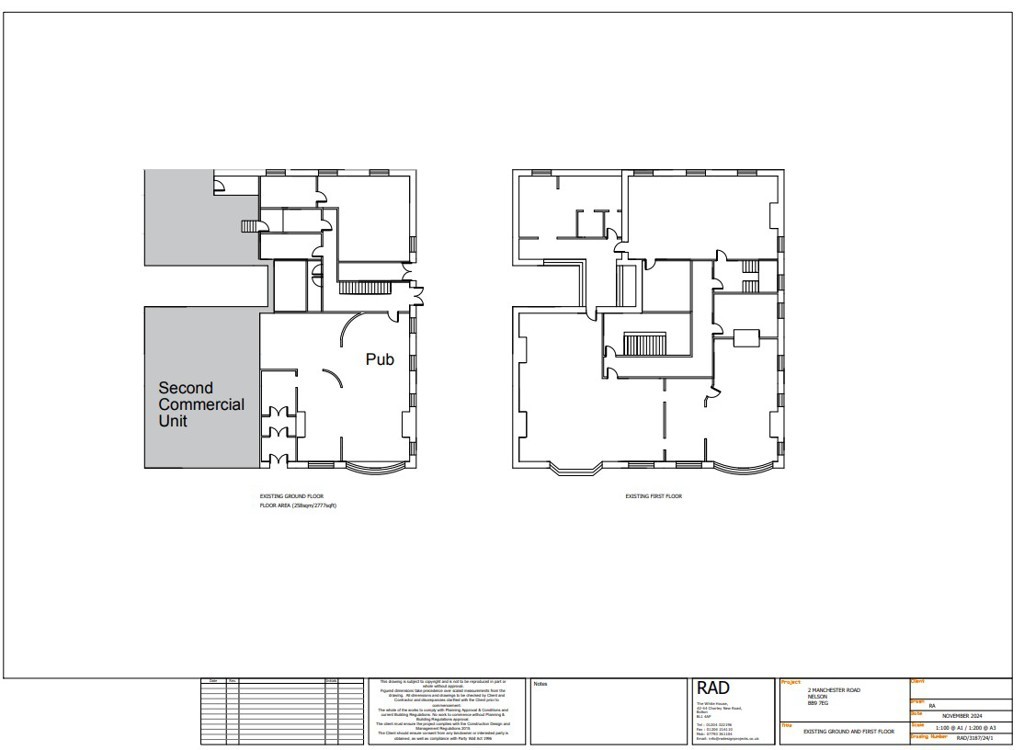
An attractive investment and town-centre development opportunity: the substantial property comprises a public house and adjacent retail unit, both sold subject to tenancies generating a total income of £43,800pa. The upper floors are accessed separately, at the side of the property, and has potential for conversion to 23 HMO rooms or 13no. one and two bed apartments, subject to obtaining the necessary consents, which have the potential to generate an additional £100,000 per annum of rental income. The property enjoys a prominent position fronting Manchester Road in Nelson town centre, with nearby occupiers including Halifax, Home Bargains, and Pendle Rise Shopping Centre situated across the road.
Planning
For any pre-application advice, interested parties should consult directly with the Local Planning Authority: Burnley Borough Council, Town Hall, Manchester Road, Burnley, BB11 9SA. Telephone: 01282 425 011. Email: [email protected]
Costs
Details of the Buyer's Premium and any additional fees payable are contained within the legal documents.
General
1. All the information provided on our website is for indicative purposes only and interested parties should refer to the contents of the legal pack and rely upon their own due diligence as a prudent bidder.

2. PLEASE NOTE BIDDING COMMENCES ON TUESDAY 26TH AUGUST AND CLOSES ON WEDNESDAY 27TH AUGUST.

3. Energy Performance Certificates: Pub = D. Hairdressers = C.

Our Nearest Office

Manchesterresize 600x300

Manchester

Search Available
Online Auctions
Search online auction icon
Guide to
Buying at Auction
Buying guide icon
Guide to Selling
Your Property
Selling guide icon
Sign Up For
Auction Alerts
Alert icon