Lot
019
Auction Ends: 31/01/2024 11:21 - Bidding opens Tuesday 30th January 10:00 AM

26 St. Ronans Road, Sheffield, South Yorkshire, S7 1DX

Property Details
Location
Description
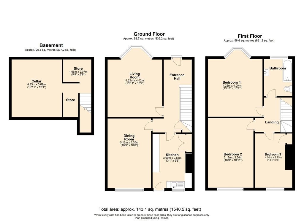
An attractive stone fronted 3 bedroom detached house occupying a good size plot in this popular residential area. The accommodation is located over two levels, requires a scheme of modernisation and offers excellent potential as family house.
Location
St Ronans Road runs between the A621 Abbeydale Road - one of the main arterial routes into Sheffield from the South West, and Steade Road, just after the junction with Chippinghouse Road The area is a popular residential area ,well served by local facilities and lies within easy reach of the City Centre as well as a comprehensive array of shops on both Abbeydale an London Road
Accommodation
Ground FloorEntrance Hall, Living room, Dining Room & Kitchen
First floorLanding, 3 Bedrooms & Bathroom
Basement Cellar & 2 Stores
Costs
Details of the Buyer's Premium and any additional fees payable are contained within the legal documents.
General
1. All the information provided on our website is for indicative purposes only and interested parties should refer to the contents of the legal pack and rely upon their own due diligence as a prudent bidder.

2. PLEASE NOTE BIDDING COMMENCES ON TUESDAY 30TH JANUARY AND CLOSES ON WEDNESDAY 31ST JANUARY.

3. Energy Performance Certificate = E.

Our Nearest Office

Sheffield 600x300

Sheffield

Joint Agent

Anderson Residential Ltd
Contact: Andersons

You may also like

013

55 Cannon Hall Road, Fir Vale, Sheffield, South Yorkshire, S5 7AL

Auction Ends: 27/08/2025

Guide Price: £225,000 plus

015

101 Lees Hall Road, Norton Lees, Sheffield, South Yorkshire, S8 9JL

Auction Ends: 27/08/2025

Guide Price: £175,000 plus

019

476/476A, Glossop Road, Broomhill, Sheffield, South Yorkshire, S10 2QA

Auction Ends: 27/08/2025

Guide Price: £275,000 plus

021

190 Fitzwilliam Road, Rotherham, South Yorkshire, S65 1QA

Auction Ends: 27/08/2025

Guide Price: £240,000 plus

023

4 Birchwood Grove, Westfield, Sheffield, South Yorkshire, S20 8LS

Auction Ends: 27/08/2025

Guide Price: £90,000 plus

025

97 Shirebrook Road, Meersbrook, Sheffield, South Yorkshire, S8 9RF

Auction Ends: 27/08/2025

Guide Price: £175,000 plus

030

43 Eldon Road, Rotherham, South Yorkshire, S65 1RB

Auction Ends: 27/08/2025

Guide Price: £48,000 plus

038

75 Woodview Road, Sheffield, South Yorkshire, S6 5AB

Auction Ends: 27/08/2025

Guide Price: £90,000 plus

056

45 Princess Street, Brimington, Chesterfield, Derbyshire, S43 1HP

Auction Ends: 27/08/2025

Guide Price: £75,000 plus

061

28 Glumangate, Chesterfield, Derbyshire, S40 1TX

Auction Ends: 27/08/2025

Guide Price: £110,000 plus

073

Freehold Ground Rents, Various Areas, Sheffield & Sunderland, South Yorkshire, S35 2UF

Auction Ends: 27/08/2025

Guide Price: £7,500 plus

082

1 Emily Road, Nether Edge, Sheffield, South Yorkshire, S7 1HH

Auction Ends: 27/08/2025

Guide Price: £230,000 plus

083

19 Moncrieffe Road, Nether Edge, Sheffield, South Yorkshire, S7 1HQ

Auction Ends: 27/08/2025

Guide Price: £375,000 plus

088

92 Green Street, Deepcar, Sheffield, South Yorkshire, S36 2PZ

Auction Ends: 27/08/2025

Guide Price: £60,000 plus

092

Leasehold Ground Rents, Various Areas Of Sheffield , Sheffield, South Yorkshire, S10 1NG

Auction Ends: 27/08/2025

Guide Price: £7,500 plus

009

284 School Road, Crookes, Sheffield, South Yorkshire, S10 1GR

Auction Ends: 24/09/2025

Guide Price: £195,000 plus

018

250 Psalters Lane, Kimberworth, Rotherham, South Yorkshire, S61 1HP

Auction Ends: 24/09/2025

Guide Price: £60,000 plus

022

Land To The East Of 15 Pingle Road, Killamarsh, Sheffield, Derbyshire, S21 1JE

Auction Ends: 24/09/2025

Guide Price: £25,000 plus

023

Land To The Rear Of 18-22 Norwood Place, Killamarsh, Sheffield, Derbyshire, S21 2DF

Auction Ends: 24/09/2025

Guide Price: £750 plus

025

The Coach House, 16 Chapman Street, Wincobank, Sheffield, South Yorkshire, S9 1NG

Auction Ends: 24/09/2025

Guide Price: £60,000 plus

029

16 -20 Sidney Street, Sheffield, South Yorkshire

Auction Ends: 24/09/2025

Guide Price: £375,000 plus

032

233 & 233A Abbeydale Road, Sheffield, South Yorkshire, S7 1FJ

Auction Ends: 24/09/2025

Guide Price: £200,000

039

Land At The Rear Of 3 Canal Bridge, Killamarsh, Sheffield, Derbyshire, S21 1DJ

Auction Ends: 24/09/2025

Guide Price: £120,000 plus

040

Apartment 57, Smithfield Apartments, 131 Rockingham Street, Sheffield, South Yorkshire, S1 4EY

Auction Ends: 24/09/2025

Guide Price: £50,000 plus

Search Available
Online Auctions
Search online auction icon
Guide to
Buying at Auction
Buying guide icon
Guide to Selling
Your Property
Selling guide icon
Sign Up For
Auction Alerts
Alert icon