We're now part of BTG Eddisons - Visit our new website BTGEddisonsPropertyAuctions.com
Auction: 30th April 2026 Live Stream Auction 30/04/2026 - Bidding opens Thursday 30th April 9:00 AM

179 Aldershot Road, Church Crookham, Fleet, Hampshire GU52 8JS

Guide Price
£300,000 plus
We've unified our Auction Brands
If you're interested in this lot visit BTG Eddisons Property Auctions to book a viewing, submit an offer, send an enquiry and more.
View more details about this property on our new auction website
Share this Property
Property Details
Location
Auction Details
Description
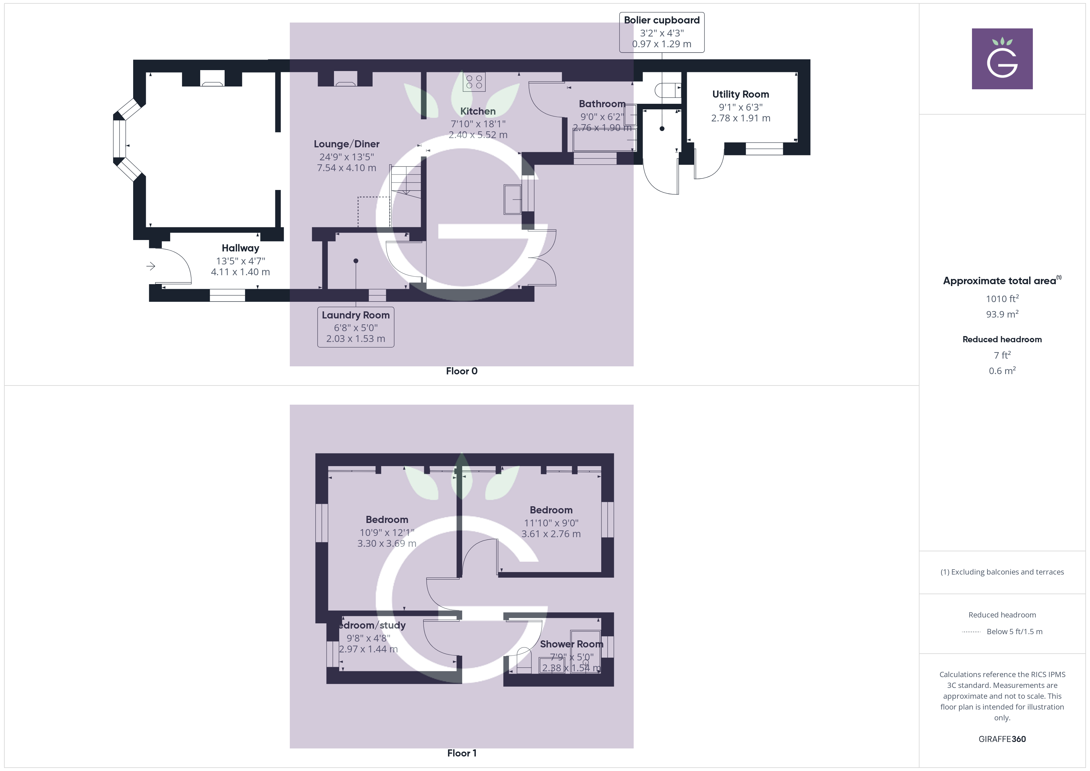
An extended Victorian semi-detached home, situated in the sought-after village of Church Crookham.

Access to local amenities, schools, and regular bus services and easy access to the M3 motorway.
Accommodation

Ground Floor
Entrance hall, lounge/dining room, kitchen, laundry room, utility room, bathroom

First Floor
2 double bedrooms, small single bedroom

Outside
Off road parking, rear garden

Costs
Auction Details

The sale of this property will take place on the stated date by way of Live streamed auction and is being sold under the Unconditional sale type.

Binding contracts will be exchanged at the point of sale.

All sales are subject to our Common Auction Conditions and Bidder Terms. Properties located in Scotland and Northern Ireland will be subject to applicable local laws.

Auction Deposit and Fees

The following deposits and non- refundable auctioneers fees apply:

• 10% deposit (subject to a minimum of £5,000)

• Buyer’s Fee of £2,100 inc. VAT

There may be additional fees listed in the Special Conditions of Sale, which will be available to view within the Legal Pack. You must read the Legal Pack carefully before bidding.

Additional Information

For full details about our auction processes, please refer to the Bidder Terms which can be viewed on our home page.

This explains the types of auction and sale methods we offer, the bidding registration process, your payment obligations, and how to view the Legal Pack (and any applicable home report for residential Scottish properties).

Guide Price & Reserve Price

Each property sold is subject to a Reserve Price. The Reserve Price will be within + or - 10% of the Guide Price. The Guide Price is issued solely as a guide so that a buyer can consider whether or not to pursue their interest. A full definition can be found within the Buyers Terms. 
General

Note
Please be advised that whilst our joint agent has conducted an inspection, the auctioneers have not personally inspected the property. Prospective buyers are advised to make a viewing enquiry and any other necessary independent enquiries before placing their bid, as this will be binding.

Our Nearest Office

London 600x300

London

Joint Agent

You may also like

Live Stream Auction

30A Monks Way, Amington, Tamworth, Staffordshire B77 3DB

Guide Price: £39,500 plus

Live Stream Auction

Flat A & B, 4 Windsor Road, Ilford, Greater London IG1 1HQ

Guide Price: £375,000 plus

Sold Prior to Auction

160 Darbys Hill Road, Tividale, Oldbury, West Midlands B69 1SQ

Guide Price: £190,000

Live Stream Auction

Sandhill Cottage, Bodle Street Green, Hailsham, East Sussex BN27 4QU

Guide Price: £400,000 plus

Live Stream Auction

9 Ariana Apartments, 89 Lillie Road, London SW6 1UD

Guide Price: £595,000 plus

Live Stream Auction

20 Duke Street, Colne, Lancashire BB8 0SU

Guide Price: £50,000 plus

Live Stream Auction

3 Bainbridge Terrace, Huthwaite, Sutton-In-Ashfield, Nottinghamshire NG17 2JH

Guide Price: £55,000 plus

Live Stream Auction

55 Boutport Street, Barnstaple, Devon EX31 1SH

Guide Price: £120,000 plus

Search Available
Online Auctions
Search online auction icon
Guide to
Buying at Auction
Buying guide icon
Guide to Selling
Your Property
Selling guide icon
Sign Up For
Auction Alerts
Alert icon