We're now part of BTG Eddisons - Visit our new website BTGEddisonsPropertyAuctions.com
Lot
222
Auction: 28th May 2026 Live Stream Auction 28/05/2026 - Bidding opens Thursday 28th May 9:00 AM

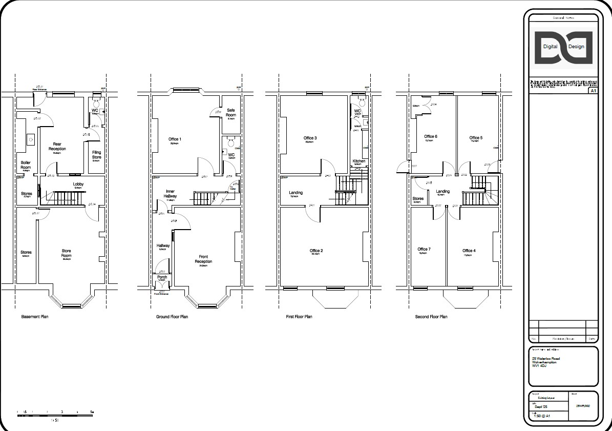
25 Waterloo Road, Wolverhampton, West Midlands WV1 4DJ

Guide Price
£350,000 plus
We've unified our Auction Brands
If you're interested in this lot visit BTG Eddisons Property Auctions to book a viewing, submit an offer, send an enquiry and more.
View more details about this property on our new auction website
Share this Property
Property Details
Location
Auction Details
Description
A freehold mixed use property extending four stories (including basement) offered with current income of £14,400pa. The property has recently had a new roof (not inspected) and has two near completed one bedroom apartments to the second floor (we are advised these require sign off).

The ground floor basement is let producing £1,200 pcm to a Photography studio on a 5 year lease with end date in 07/2030 (see legal pack for more information). There is access to the car park from the basement level.

The first floor comprises two large rooms which have planning consent for the creation of residential dwellings.

we estimate the property has scope for £52,800pa income when fully let and completed.

There is a large car park to the rear of the property with space for circa 10 cars. We note local properties have been extended out onto this area.

Prominently positioned on a principal arterial route into Wolverhampton city centre, this property occupies a highly visible and strategically advantageous location within an established commercial corridor. Waterloo Road serves as a key thoroughfare, benefitting from significant vehicular flow and consistent pedestrian activity, reinforcing its suitability for a range of commercial uses (subject to planning).

The property is situated in close proximity to Wolverhampton city centre, providing immediate access to a comprehensive range of retail, leisure, and professional amenities. Wolverhampton Railway Station is located within a short distance, offering regular direct services to Birmingham, London, and wider national destinations, thereby enhancing regional and national connectivity.

The surrounding area is characterised by a mix of commercial occupiers, public sector buildings, and residential accommodation, supporting a diverse and sustainable local economy. The location benefits from strong public transport provision, with multiple bus routes serving the immediate vicinity.

This is a well-located opportunity within a recognised commercial setting, offering excellent prominence, accessibility, and connectivity. The property is considered suitable for occupiers, investors, or developers seeking a centrally positioned asset with strong underlying location fundamentals.
Costs
Auction Details

The sale of this property will take place on the stated date by way of Live streamed auction and is being sold under the Unconditional sale type.

Binding contracts will be exchanged at the point of sale.

All sales are subject to our Common Auction Conditions and Bidder Terms. Properties located in Scotland and Northern Ireland will be subject to applicable local laws.

Auction Deposit and Fees

The following deposits and non- refundable auctioneers fees apply:

• 5% deposit (subject to a minimum of £5,000)

• Buyer’s Fee of 2.75% of the purchase price inc. VAT

There may be additional fees listed in the Special Conditions of Sale, which will be available to view within the Legal Pack. You must read the Legal Pack carefully before bidding.

Additional Information

For full details about our auction processes, please refer to the Bidder Terms which can be viewed on our home page.

This explains the types of auction and sale methods we offer, the bidding registration process, your payment obligations, and how to view the Legal Pack (and any applicable home report for residential Scottish properties).

Guide Price & Reserve Price

Each property sold is subject to a Reserve Price. The Reserve Price will be within + or - 10% of the Guide Price. The Guide Price is issued solely as a guide so that a buyer can consider whether or not to pursue their interest. A full definition can be found within the Buyers Terms. 
General

Draft Sales Particulars
These sales details are awaiting vendor approval

Our Nearest Office

Birmingham 600x300

Birmingham

You may also like

101
Live Stream Auction

13 Olton Road, Mickleover, Derby DE3 0PL

Guide Price: £95,000 plus

102
Live Stream Auction

12 Northgate Street, Ilkeston DE7 8FR

Guide Price: £49,500 plus

103
Live Stream Auction

28 Northfield Avenue, Birstall, Leicester, Leicestershire LE4 4HW

Guide Price: £150,000 plus

104
Live Stream Auction

87 Kirkdale Road, Wigston, Leicestershire LE18 4SR

Guide Price: £100,000 plus

105
Live Stream Auction

104 Village Street, Derby DE23 8DF

Guide Price: £120,000 plus

106
Live Stream Auction

115 & 116 Moor Street, Burton-On-Trent, Staffordshire DE14 3SU

Guide Price: £135,000 plus

107
Live Stream Auction

15 Donisthorpe Lane, Moira, Swadlincote, Derbyshire DE12 6AZ

Guide Price: £75,000 plus

108
Live Stream Auction

Site next to 5 Harlesthorpe Avenue, Clowne, Chesterfield, Derbyshire S43 4AG

Guide Price: £17,500 plus

Search Available
Online Auctions
Search online auction icon
Guide to
Buying at Auction
Buying guide icon
Guide to Selling
Your Property
Selling guide icon
Sign Up For
Auction Alerts
Alert icon