We're now part of BTG Eddisons - Visit our new website BTGEddisonsPropertyAuctions.com
Lot
181
Auction: 26th March 2026 Live Stream Auction 26/03/2026 - Bidding opens Thursday 26th March 9:00 AM

23-25 Carlton Road, Nottingham NG3 2DG

Available at
£440,000
We've unified our Auction Brands
If you're interested in this lot visit BTG Eddisons Property Auctions to book a viewing, submit an offer, send an enquiry and more.
View more details about this property on our new auction website
Share this Property
Property Details
Location
Auction Details
Description
A substantial, double fronted, commercial property with planning permission in place.

Currently offering a large ground floor retail space. Numerous offices over the first and second floors along with warehouse space to the rear. The property also benefits from secure car parking to the rear.

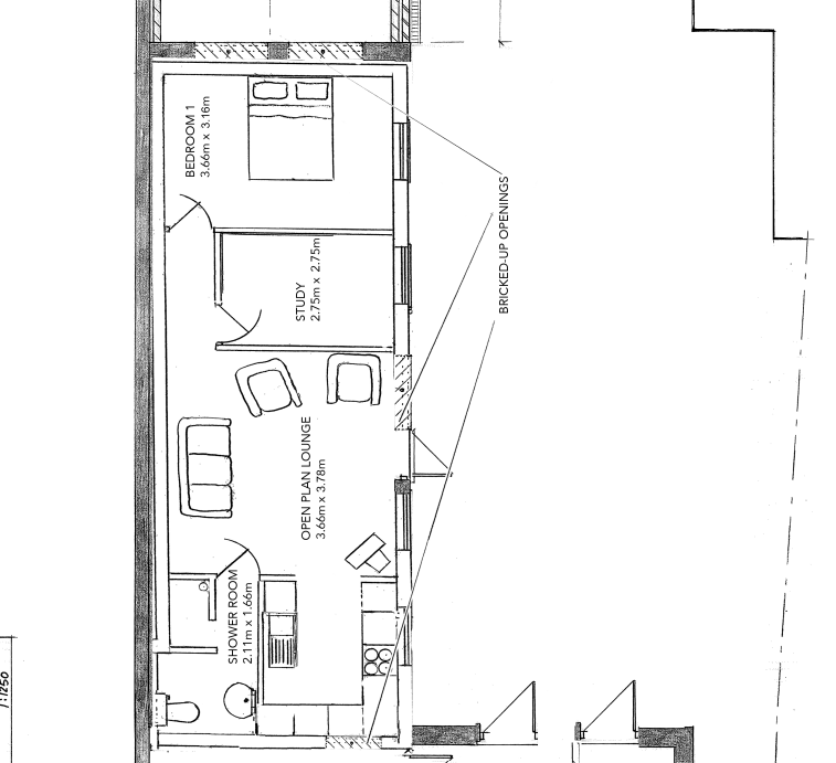
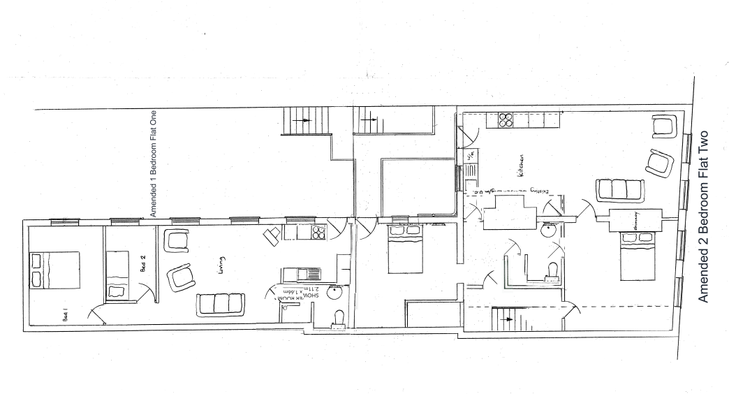
Planning permission has been granted to convert the upper and rear parts to 4x2 bedroom flats and a 1x3 bedroom town house.

Full details can be viewed on the Nottingham City Council planning portal -
Planning References- 06/01076/PFUL3 & 23/02151/PFUL3 & 24/00745/PACPD

The ground floor retail space is currently let at £18,000 per annum.

The site also has potential to keep as retail, office and warehouse space of desired.

Well placed on the edge of the City Centre with an abundance of other commercial and residential properties close by as well as excellent transport links.

Internal viewing highly recommended.
Accommodation

Ground Floor Retail- Let at £18,000 per annum.
Double fronted shops premises with toilets and kitchens.

Front First and Second Floors - Vacant
A range of eight offices.

Rear Warehouse One - Vacant
Two storey warehouse which has been partly converted to two flats.

Rear Warehouse Two - Vacant
Large storage space with planning for a three bedroom, three storey house.

Ouside
Rear parking with secure, automated gates.

Cellar
Useful storage.

Costs
Auction Details

The sale of this property will take place on the stated date by way of Live streamed auction and is being sold under the Unconditional sale type.

Binding contracts will be exchanged at the point of sale.

All sales are subject to our Common Auction Conditions and Bidder Terms. Properties located in Scotland and Northern Ireland will be subject to applicable local laws.

Auction Deposit and Fees

The following deposits and non- refundable auctioneers fees apply:

• 10% deposit (subject to a minimum of £5,000)

• Buyer’s Fee of 1.2% of the purchase price (subject to a minimum of £1,500 inc. VAT)

There may be additional fees listed in the Special Conditions of Sale, which will be available to view within the Legal Pack. You must read the Legal Pack carefully before bidding.

Additional Information

For full details about our auction processes, please refer to the Bidder Terms which can be viewed on our home page.

This explains the types of auction and sale methods we offer, the bidding registration process, your payment obligations, and how to view the Legal Pack (and any applicable home report for residential Scottish properties).

Guide Price & Reserve Price

Each property sold is subject to a Reserve Price. The Reserve Price will be within + or - 10% of the Guide Price. The Guide Price is issued solely as a guide so that a buyer can consider whether or not to pursue their interest. A full definition can be found within the Buyers Terms. 
General

Draft Sales Particulars
These sales details are awaiting vendor approval

Our Nearest Office

Nottingham 600x300

Nottingham

You may also like

101
Sold at auction

39 Crosshill, Cotgrave, Nottingham NG12 3NB

Guide Price: £59,500 plus

102
Sold at auction

30 Mardon Road, Birmingham, West Midlands B26 3EX

Guide Price: £95,000 plus

103
Sold at auction

Garage Site at New Road, Barlborough, Derbyshire S43 4HY

Guide Price: £10,000 plus

104
Sold at auction

Land with caravan parking, garages & paddock, Alfreton Road, Little Eaton, Derbyshire DE21 5AD

Guide Price: £90,000 plus

105
Sold at auction

19 May Street, Derby DE22 3UQ

Guide Price: £55,000 plus

106
Sold at auction

Holmewood Industrial Estate Units, Stainsby Close, Holmewood S42 5UG

Guide Price: £575,000 plus

107
Sold at auction

Holmewood Business Park, Chesterfield Road, Holmewood S42 5US

Guide Price: £1,200,000 plus

108
Sold at auction

2 Longfield, Falmouth, Cornwall TR11 4SJ

Guide Price: £220,000 plus

Search Available
Online Auctions
Search online auction icon
Guide to
Buying at Auction
Buying guide icon
Guide to Selling
Your Property
Selling guide icon
Sign Up For
Auction Alerts
Alert icon