We're now part of BTG Eddisons - Visit our new website BTGEddisonsPropertyAuctions.com
Lot
004
Auction: 24th March 2026 Multi-Lot Timed Auction 24/03/2026 - Bidding opens Tuesday 24th March 10:00 AM

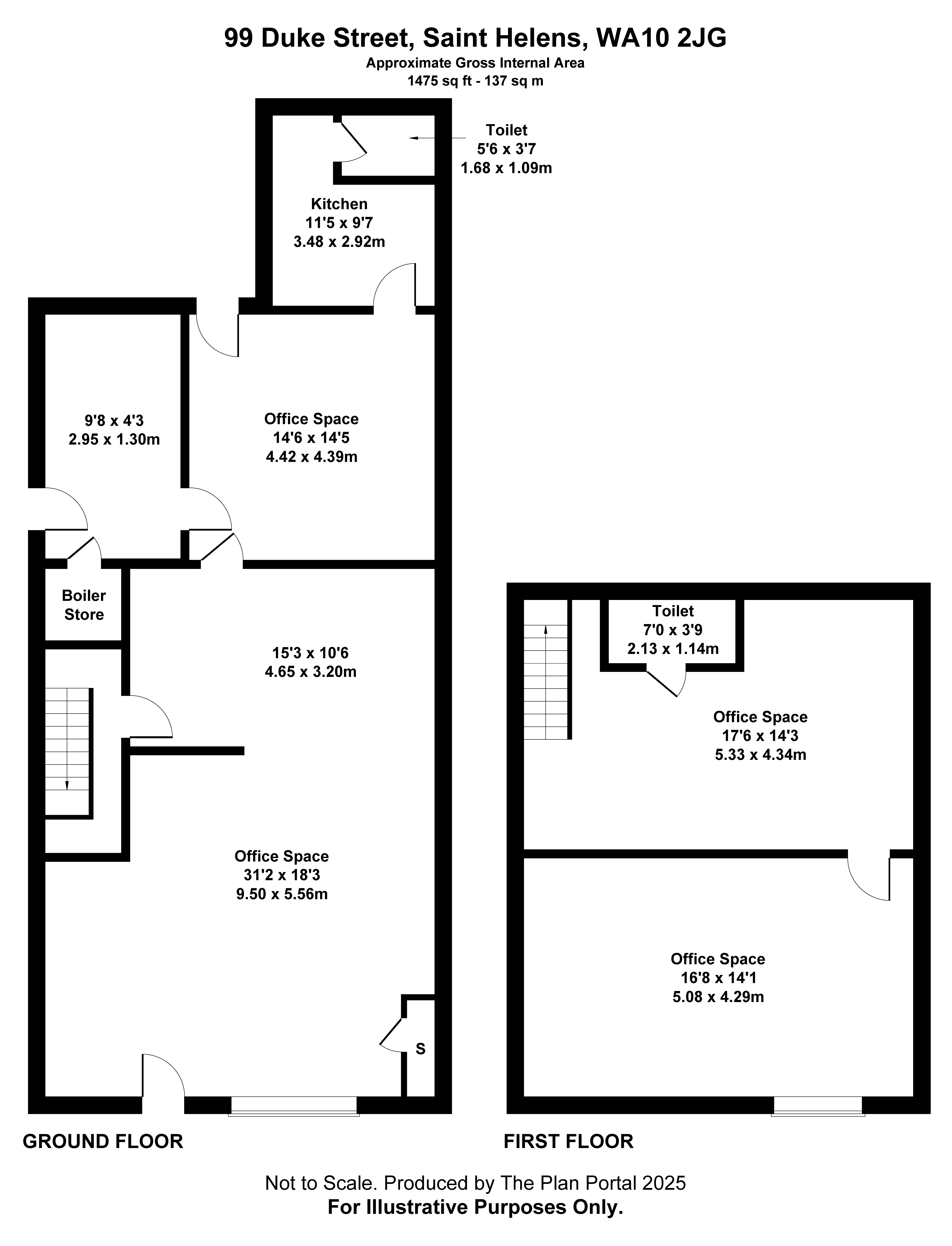
99 Duke Street, St. Helens, Merseyside WA10 2JG

Guide Price
£125,000 plus
We've unified our Auction Brands
If you're interested in this lot visit BTG Eddisons Property Auctions to book a viewing, submit an offer, send an enquiry and more.
View more details about this property on our new auction website
Share this Property
Property Details
Location
Auction Details
Description
An investment / development opportunity comprising a brick built two storey office building extending to approximately 137 Sq.M (1,474 Sq.Ft) (source EPC) and offered with vacant possession. Internally the property has been completely remodelled and refurbished in recent years and provides office accommodation over ground and first floors but benefits from a recently approved planning consent to convert the first floor into a self contained two bedroom apartment. Currently the ground floor comprises a modern open plan office space to the front with separate offices, kitchen and W.C. to the rear whilst the first floor details two separate offices and W.C.

The property fronts onto the corner of Duke Street and Talbot Close in St Helen's town centre forming part of a row of commercial units which incluide a variety of independent retailers and businesses.
Accommodation

Ground floor
131 Sq.M (1414 Sq.Ft) - sizes are approximate

First floor
43 Sq.M (471 Sq.Ft) - sizes are approximate

Costs
Auction Details

The sale of this property will take place on the stated date by way of Multi lot timed auction and is being sold under the Unconditional sale type.

Binding contracts will be exchanged at the point of sale.

All sales are subject to our Common Auction Conditions and Bidder Terms. Properties located in Scotland and Northern Ireland will be subject to applicable local laws.

Auction Deposit and Fees

The following deposits and non- refundable auctioneers fees apply:

• 10% deposit (subject to a minimum of £5,000)

• Buyer’s Fee of 1.8% of the purchase price (subject to a minimum of £2,400 inc. VAT)

There may be additional fees listed in the Special Conditions of Sale, which will be available to view within the Legal Pack. You must read the Legal Pack carefully before bidding.

Additional Information

For full details about our auction processes, please refer to the Bidder Terms which can be viewed on our home page.

This explains the types of auction and sale methods we offer, the bidding registration process, your payment obligations, and how to view the Legal Pack (and any applicable home report for residential Scottish properties).

Guide Price & Reserve Price

Each property sold is subject to a Reserve Price. The Reserve Price will be within + or - 10% of the Guide Price. The Guide Price is issued solely as a guide so that a buyer can consider whether or not to pursue their interest. A full definition can be found within the Buyers Terms. 
General


1. All the information provided on our website is for indicative purposes only and interested parties should refer to the contents of the legal pack and rely upon their own due diligence as a prudent bidder.


2. PLEASE NOTE BIDDING COMMENCES ON TUESDAY 24TH MARCH AND CLOSES ON WEDNESDAY 25TH MARCH.


3. Details of the Buyers Premium and any additional fees payable are contained within the legal documents.

Our Nearest Office

Liverpool 600x300

Liverpool

You may also like

001
Multi-Lot Timed Auction

Land at Ferham Road, Rotherham, South Yorkshire S61 1AP

Guide Price: £185,000 plus

002
Multi-Lot Timed Auction

71A Hoyland Road, Hoyland, Barnsley, South Yorkshire S74 0LT

Guide Price: £160,000 plus

003
Multi-Lot Timed Auction

Land To The North Of Bertha Street, Bolton, Lancashire BL1 8AH

Guide Price: £250,000 plus

005
Multi-Lot Timed Auction

Development Land at Hammond Hall, Elmete Lane, Leeds, West Yorkshire LS8 2SJ

Guide Price: £200,000 plus

006
Multi-Lot Timed Auction

23 Avenue Road, Wath-Upon-Dearne, Rotherham, South Yorkshire S63 7AG

Guide Price: £85,000 plus

007
Postponed

The Cube, Block A BTC-610, 87 Bradshawgate, Bolton, Lancashire BL1 1QD

Guide Price: £10,000 plus

008
Multi-Lot Timed Auction

74, 76, 78 & 80 Northgate, Almondbury, Huddersfield, West Yorkshire HD5 8RX

Guide Price: £75,000 plus

009
Multi-Lot Timed Auction

Land At Lumb Lane, Almondbury, Huddersfield, West Yorkshire HD4 6SZ

Guide Price: £175,000 plus

Search Available
Online Auctions
Search online auction icon
Guide to
Buying at Auction
Buying guide icon
Guide to Selling
Your Property
Selling guide icon
Sign Up For
Auction Alerts
Alert icon