We're now part of BTG Eddisons - Visit our new website BTGEddisonsPropertyAuctions.com
Auction: 26th February 2026 Live Stream Auction 26/02/2026 - Bidding opens Thursday 26th February 9:00 AM

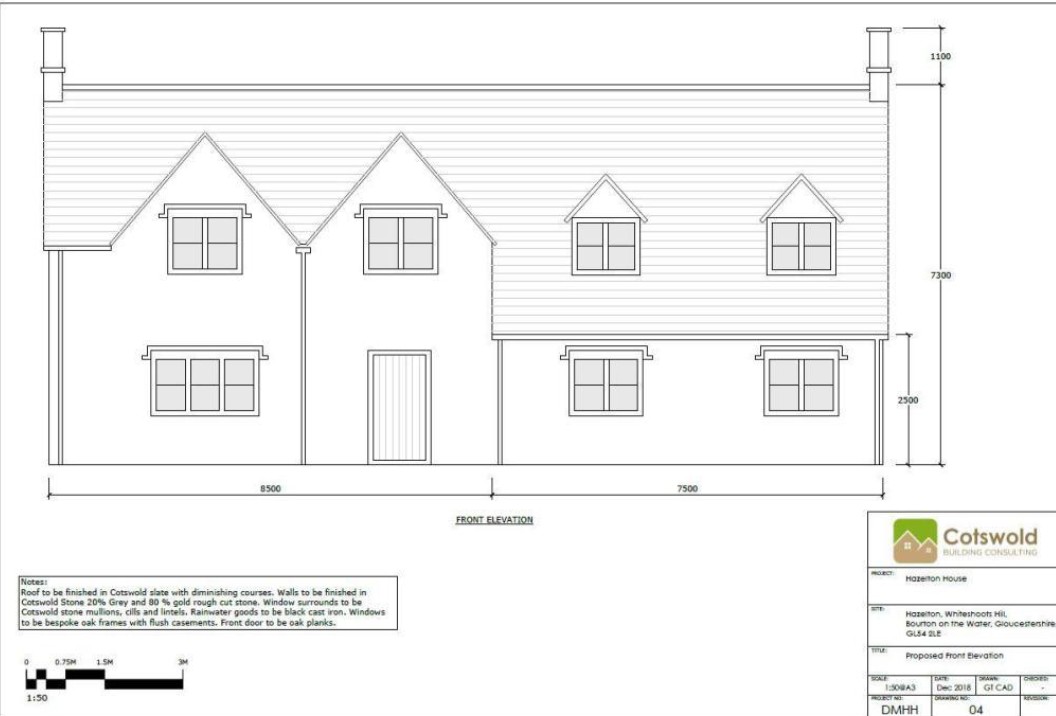
Hazelton, Whiteshoots Hill, Bourton-On-The-Water, Gloucestershire GL54 2LE

Guide Price
£485,000 plus
We've unified our Auction Brands
If you're interested in this lot visit BTG Eddisons Property Auctions to book a viewing, submit an offer, send an enquiry and more.
View more details about this property on our new auction website
Share this Property
Property Details
Location
Auction Details
Description
A freehold site comprising a substantial detached bungalow set within a generous and open site extending to just over 1.5 acres. The remainder of the site comprises two storage buildings along with a detached Nissan Hut. There is access both to the front and rear of the site.

PLANNING
Planning consent has expired for the replacement of the existing dwelling with a substantial detached house with accommodation to be arranged over two floors and extending to over 5,000 sq ft including a detached garage and studio.

We feel there may well be good potential to make an application for a Specialist Care Unit with C2 use in a building of similar size.

Hazelton is situated on the edge of and within walking distance of Bourton-on-the-Water. Bourton provides an excellent range of local facilities including a range of boutique shops, supermarkets, pubs, restaurants, doctors, churches, a leisure centre, local primary school and the popular Cotswold Secondary school. The area's larger commercial and cultural centres of Cheltenham, Cirencester and Oxford are within easy travelling distance and there are main line rail services at Kingham (8 miles) (Paddington 80mins approx.). There is also a comprehensive local bus network.
Accommodation

Note
Please be advised that the auctioneers have not personally inspected the property. Prospective buyers are advised to make a viewing enquiry and any other necessary independent enquiries before placing their bid, as this will be binding.

Draft Sales Details
These sales details are awaiting vendor approval.

Costs
Auction Details:

The sale of this property will take place on the stated date by way of Auction Event and is being sold under an Unconditional sale type.

Binding contracts of sale will be exchanged at the point of sale.

All sales are subject to SDL Property Auctions Buyers Terms. Properties located in Scotland will be subject to applicable Scottish law.

Auction Deposit and Fees:

The following deposits and non- refundable auctioneers fees apply:

• 5% deposit (subject to a minimum of £5,000)

• Buyers Fee of 3.6% of the purchase price inc. VAT. 

The Buyers Fee does not contribute to the purchase price, however it will be taken into account when calculating the Stamp Duty Land Tax for the property (known as Land and Buildings Transaction Tax for properties located in Scotland), because it forms part of the chargeable consideration for the property.

There may be additional fees listed in the Special Conditions of Sale, which will be available to view within the Legal Pack. You must read the Legal Pack carefully before bidding.

Additional Information:

For full details about all auction methods and sale types please refer to the Auction Conduct Guide which can be viewed on the SDL Property Auctions home page.

This guide includes details on the auction registration process, your payment obligations and how to view the Legal Pack (and any applicable Home Report for residential Scottish properties).

Guide Price & Reserve Price:

Each property sold is subject to a Reserve Price. The Reserve Price will be within + or - 10% of the Guide Price. The Guide Price is issued solely as a guide so that a buyer can consider whether or not to pursue their interest. A full definition can be found within the Buyers Terms.

Our Nearest Office

Birmingham 600x300

Birmingham

Joint Agent

You may also like

3 Stamford Grove, Stalybridge SK15 1LZ

Guide Price: £100,000 plus

8 Sidley Street, Hyde SK14 2PZ

Guide Price: £140,000 plus

21 Bridge Street, Uttoxeter ST14 8AR

Guide Price: £55,000 plus

155 & 157 Monks Road, Lincoln, Lincolnshire LN2 5JJ

Guide Price: £485,000 plus

Former Chellaston Methodist Church, High Street, Chellaston, Derby DE73 6TB

Guide Price: £135,000 plus

25 Newton Street, West Bromwich, West Midlands B71 3RG

Guide Price: £300,000 plus

1 Oxford Avenue, Evington, Leicestershire LE2 1HP

Guide Price: £75,000 plus

37 West Bars, Chesterfield S40 1AG

Guide Price: £135,000 plus

Search Available
Online Auctions
Search online auction icon
Guide to
Buying at Auction
Buying guide icon
Guide to Selling
Your Property
Selling guide icon
Sign Up For
Auction Alerts
Alert icon